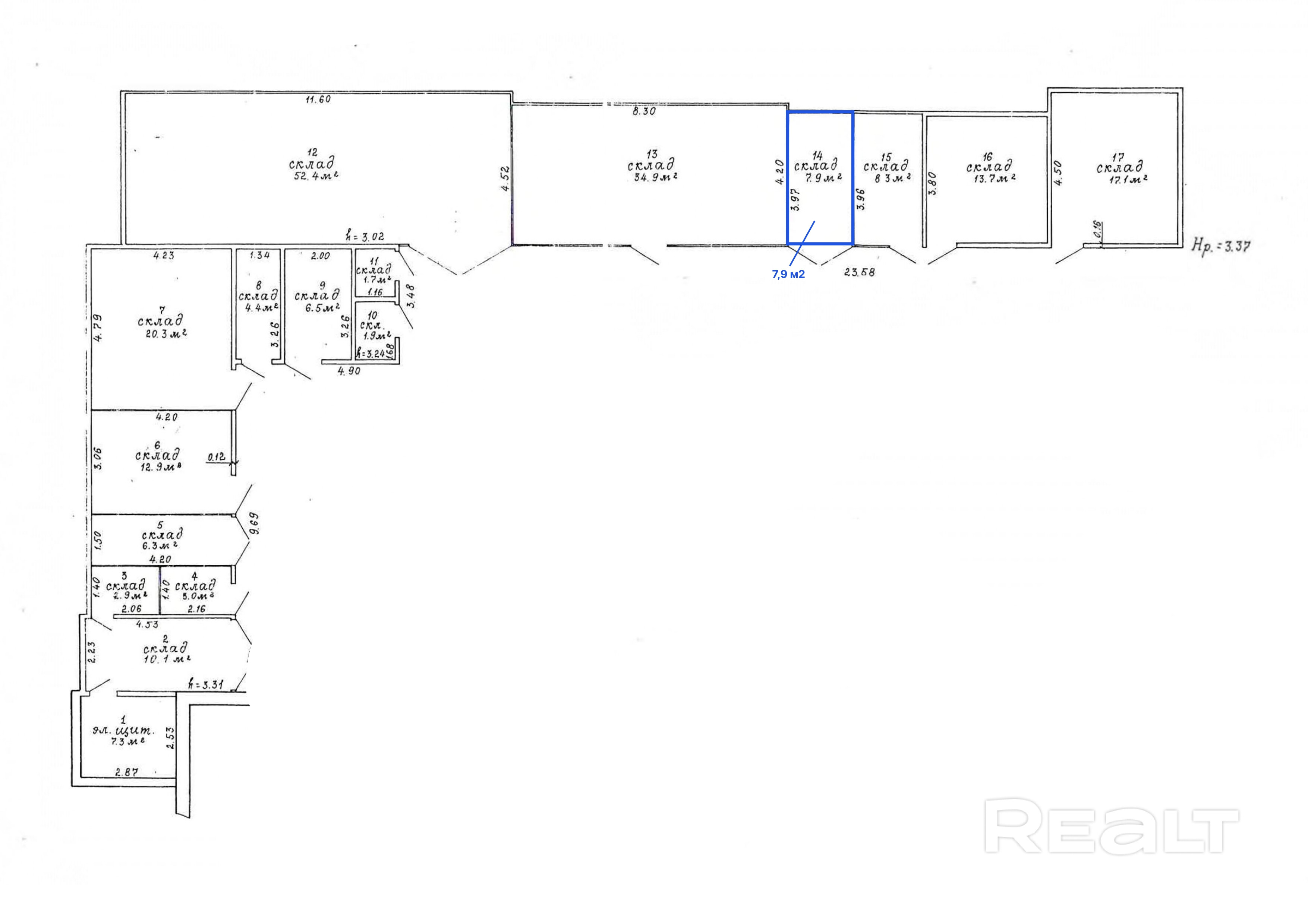
Аренда склада 7,9 кв.м. - Бровки, 30/3
25 р./м²
- г. Минскул. Бровки, 30/3
- Академия наук
- На карте
Тип
Площадь
Этаж
Описание
Что сдаётся:
– Склады (отапливаемые и неотапливаемые)
– Офисы с ремонтом и под отделку
– Помещения под мастерские, СТО, сервис
– Производственные помещения
– Возможность совмещать склад и офис в одном блоке
Особенности?
– Круглосуточный доступ
– Отдельные входы у части помещений
– Заезд транспорта, включая фуры (сможет развернуться на территории)
– Свободная и кабинетная планировка
– Коммуникации: эл-во, отопление, вода, подвод под с/у – не во всех помещениях, уточняйте у менеджеров
Назначение?
– Подойдут под склад, офис, СТО, мастерскую или небольшое производство
– Можно комбинировать форматы (офис+склад, шоурум+цех и др.)
– Если есть нестандартная задача — обсудим, подскажем по возможностям на площадке
Дополнительные затраты?
– Коммунальные по счётчику (вода, отопление, эл-во)
– Эксплуатационные расходы
– Возможна аренда парковки
Хотите посмотреть? Набирайте! Покажем помещения и заодно проведем для вас экскурсию по всему объекту :)
Компания собственник. Не все помещения и объекты успеваем добавить и разместить в рекламу – не стесняйтесь спрашивать, будем рады предложить все, что у нас есть. Также есть другие объекты: склады и офисы на Хоружей, Старовиленской, пер. Твердом, пер. Северном, ул. Кальварийской и пр.
Свободные помещения, которые у нас есть, арендные ставки и адреса под ваше назначение и цель можете уточнить у менеджера, написав в Telegram или просто позвонив. Контакты в разделе контакты.
Параметры объекта
- Тип объекта
Склад
- Площадь общая
7.90 м²
- Этаж
1
- Материал стен
Кирпичный
- Парковка
Есть
- Принадлежность объекта
Частная
- НДС
НДС включен
- Юридический адрес
Да
Оснащение
Оживленное место
Арендодатель
(собственник)
Контактное лицо
Примечание
Местоположение
- Область
- Населенный пункт
- Улица
- Номер дома
30/3
- Район города
- Микрорайон
- Координаты
53.909465693, 27.603065275
