Аренда помещения 11,43 кв.м. в бизнес-центре Omega Tower в Минск
36 р./м²
- г. Минскпросп. Дзержинского, 57
- Михалово
- 2 минуты
- На карте
Тип
Площадь
Этаж
Описание
Бизнес-центр находится напротив выхода со ст. метро Михалово (проспект Дзержинского, 57). Московский район.
- помещение без окон
- вход из здания
- освещение есть
- отопление
- электричество есть
- доступ круглосуточный
- все коммуникации проведены
В здании на есть сан.узел. Территория охраняется круглосуточно, есть видеонаблюдение.
Аренду предоставляем напрямую: без агентств и посредников. Компания является не только собственником всех сдаваемых в аренду помещений, но и застройщиком. В помещении проведен косметический ремонт.
По вопросам аренды можете звонить по телефонам, указанным в паспорте помещения. Если вы желаете, чтобы вам показали все свободные и освобождающиеся для аренды помещения, необходимо позвонить и заранее предупредить о времени, которое было бы для вас удобно.
Также у нас вы можете снять офисные, складские и производственные помещения, а также открытые площадки для хранения (склады без крыши, под хранение автомобилей либо техники).
Параметры объекта
- Тип объекта
Склад
- Площадь общая
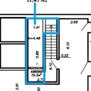
11.43 м²
- Этаж / этажность
0 / 15
- Раздельных помещений
1
- Материал стен
Панельный
- Ремонт
Отличный
- Отопление
Есть
- Электроснабжение
Есть
- Санузел
Есть
- Парковка
Есть
- Принадлежность объекта
Частная
- Расположение
В бизнес центре
- Юридический адрес
Да
Оснащение
Охрана
Видеонаблюдение
Арендодатель
(собственник)
Контактное лицо
Примечание
Аренда помещения на цокольном этаже в здании бизнес-центра, все необходимые коммуникации проведены, бесшумные лифты, охранная система. Есть собственный паркинг. Помещение является отапливаемым.
Местоположение
- Область
- Населенный пункт
- Улица
- Номер дома
57
- Район города
- Микрорайон
- Координаты
53.875517, 27.497431
