Снять торговое помещение, г. Минск, ул. Жореса Алфёрова, 8
42 р./м²
Аренда
Следить за ценой
- г. Минскул. Жореса Алфёрова, 8
- Аэродромная (2024)
- 5 минут
- На карте
Торговое помещение
Тип
138 м²
Площадь
1 из 10
Этаж
час назадID 4048691
Параметры объекта
- Тип объекта
Торговое помещение
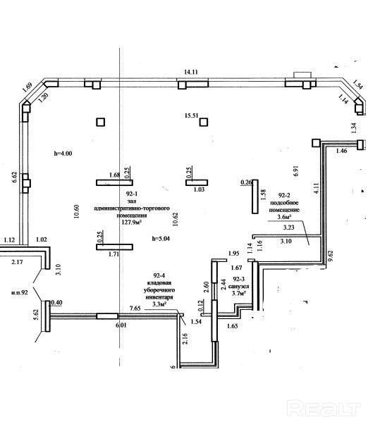
- Площадь общая
138 м²
- Этаж / этажность
1 / 10
- Год постройки
2025
- Раздельных помещений
1
- Материал стен
Монолитный
- Высота потолков
4 м
- Ремонт
Без отделки
- Отопление
Есть
- Электроснабжение
Есть
- Естественное освещение
Есть
- Вода
Есть
- Санузел
Есть
- Парковка
Есть
- Принадлежность объекта
Частная
- НДС
НДС не включен
- Расположение
В жилом доме
- Юридический адрес
Да
- Новостройка
Да
Оснащение
Оживленное место
Отдельный вход
Арендодатель
Татьяна
Контактное лицо
Примечание
Аренда административно-торгового помещения площадью 138,5 кв.м. в ЖК «Минск Мир», квартал Средиземноморский, дом "Ибица", ул. Ж. Алферова 8. Идеально подойдет: для магазина, кофейни, шоурума, салона красоты и других видов бизнеса. Первый этаж - большая парковка - панорамные окна. Помещение имеет 2 отдельных входа с разных сторон дома. Хорошая планировка, потолки от 4 до 5 метров, много естественного освещения. Возможны арендные каникулы
Местоположение
Аэродромная (2024)5 минут
- Область
- Населенный пункт
- Улица
- Номер дома
8
- Район города
- Микрорайон
- Координаты
53.8643, 27.5526
