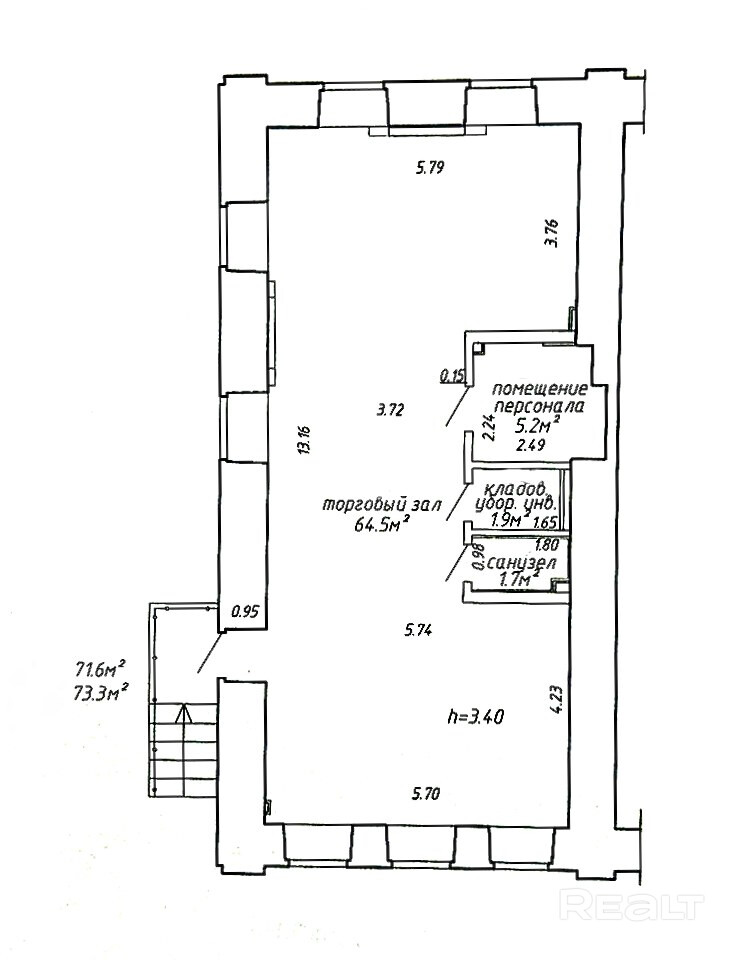
Сдается помещение в аренду по ул.К.Маркса 20 административно-торговое площадью 73,3м2.
92 р./м²
Аренда
Следить за ценой
- г. Минскул. Маркса, 20
- Купаловская
- 3 минуты
- На карте
Торговое помещение
Тип
73.30 м²
Площадь
1 из 3
Этаж
03.02.2026ID 4028659
Описание
Сдается помещение в аренду по ул. К.Маркса 20 административно-торговое площадью 73,3м2.
В центре города с удобной локацией для любого вида деятельности начиная от офиса, бьюти, турагентства и кафе.
Есть отдельный санузел, кондиционер, отдельный вход 24/7.
Отличный, современный ремонт.
Арендатор услуги агентства не оплачивает.
Лицензия: 02240/446 МЮ РБ, 11.07.2022
Параметры объекта
- Тип объекта
Торговое помещение
- Площадь общая
73.30 м²
- Этаж / этажность
1 / 3
- Материал стен
Кирпичный
- Высота потолков
3 м
- Ремонт
Хороший
- Отопление
Есть
- Электроснабжение
Есть
- Естественное освещение
Есть
- Вода
Есть
- Санузел
Есть
- Количество телефонов
1 телефон
- Парковка
Есть
- Принадлежность объекта
Частная
- НДС
НДС включен
- Юридический адрес
Да
- Номер договора
9/1А от 02.02.2026
Оснащение
Охрана
Сигнализация
Оживленное место
Компьютерная сеть
Отдельный вход
Мебель
Примечание
Сдается помещение в аренду по ул.К.Маркса 20 административно-торговое площадью 73,3м2.
Местоположение
Купаловская3 минуты
- Область
- Населенный пункт
- Улица
- Номер дома
20
- Район города
- Микрорайон
- Координаты
53.8982, 27.5585
