Снять торговое помещение, г. Минск, ул. Савицкого, 23
6 288 р.
66 р.≈ 23 $ за м²
- г. Минскул. Савицкого, 23
- Аэродромная (2024)
- На карте
Тип
Площадь
Этаж
Описание
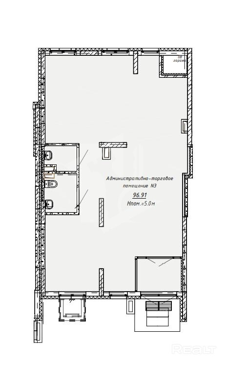
Помещение95.9 м2 в новостройке 2025 г. на Савицкого, 23.
· Локация: Окна на перекресток и во двор. 5 минут пешком до станции метро «Аэродромная». Высокий пешеходный и автомобильный трафик.
· Разрешение: Можно открыть общепит (кофейня, ресторан, пекарня).
· Коммуникации: Свой счётчик 380 В, принудительная вентиляция, канальная приточка, пожарная сигнализация.
· Условия: Потолки 5 м, первый этаж, отдельный вход, доступ 24/7, большие арендные каникулы.
Идеально под: офис, розничный магазин, салон услуг, шоу-рум.
Больше объявлений тут: www.instagram.com/garant.arenda
Напишите нам в удобный для Вас мессенджер:
Viber | Telegram | WhatsApp
Ответим на Ваши вопросы, предоставим всю необходимую дополнительную информацию.
ООО «Артель Недвижимость»
УНП 193820882
Лицензия Министерства Юстиции №48250000081913 06.03.2025 г.
Договор №33/2а 15.01.26
Параметры объекта
- Тип объекта
Торговое помещение
- Площадь общая
95.90 м²
- Этаж / этажность
1 / 13
- Год постройки
2025
- Класс
A
- Раздельных помещений
1
- Материал стен
Блочный
- Высота потолков
4 м
- Ремонт
Без отделки
- Отопление
Есть
- Электроснабжение
380В
- Естественное освещение
Есть
- Санузел
Есть
- Оборудование
Есть
- Принадлежность объекта
Частная
- НДС
НДС нет (0%)
- Расположение
В жилом доме
- Новостройка
Да
- Номер договора
33/2а от 14.01.2026
Оснащение
Оживленное место
Отдельный вход
Недвижимость
Контактное лицо
Примечание
Местоположение
- Область
- Населенный пункт
- Улица
- Номер дома
23
- Район города
- Микрорайон
- Координаты
53.865, 27.5399
