Снять торговое помещение, г. Минск, ул. Притыцкого, 29
от 28 р./м²
Аренда
Следить за ценой
- г. Минскул. Притыцкого, 29
- Спортивная
- На карте
Торговое помещение
Тип
386 м²
Площадь
28.08.2025ID 3865569
Параметры объекта
- Тип объекта
Торговое помещение
- Площадь общая
386 м²
- Высота потолков
3 м
- Ремонт
Нормальный
- Электроснабжение
Есть
- Принадлежность объекта
Частная
Арендодатель
Сергей
Контактное лицо
Примечание
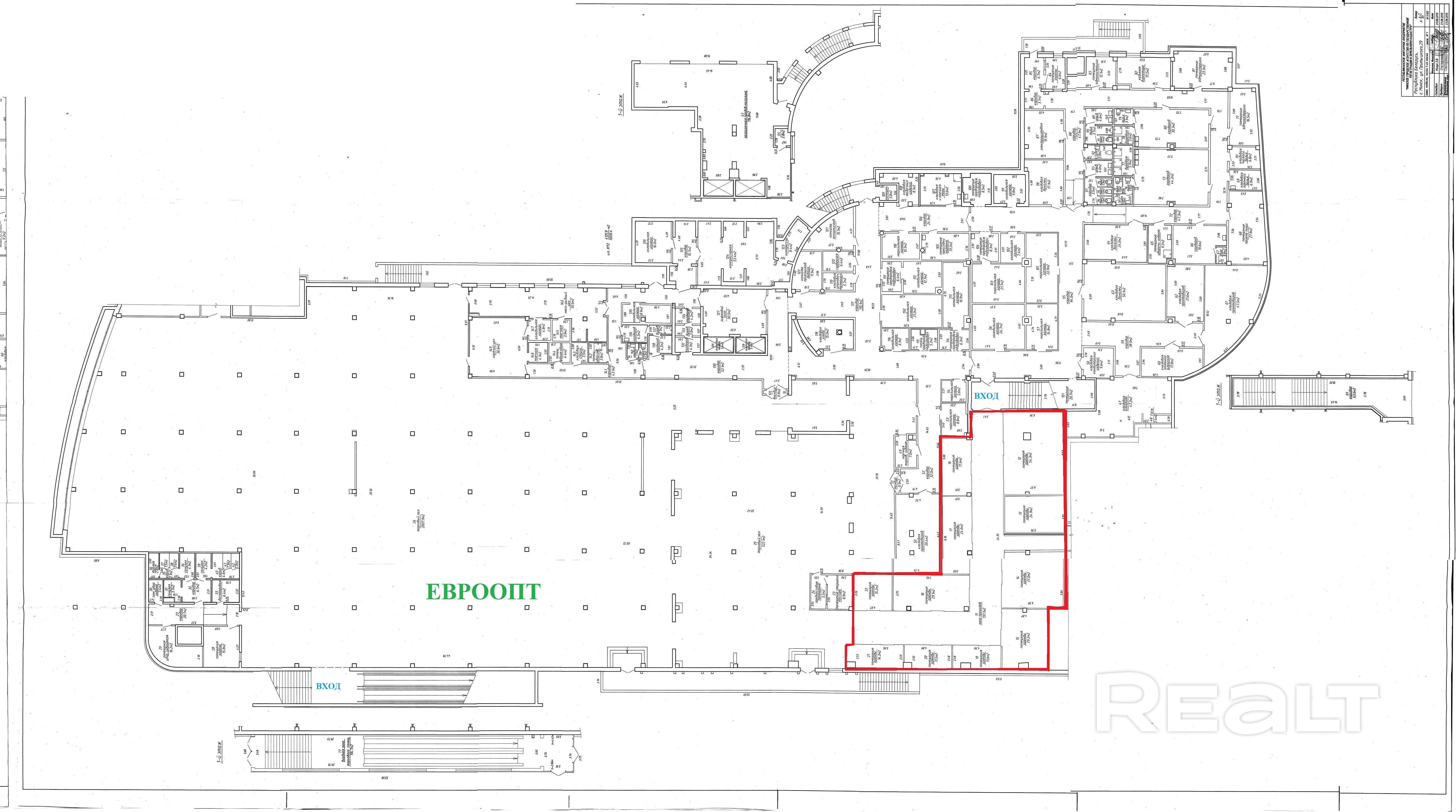
Предлагаем в аренду торговые помещения общей площадью 386 кв.м. Рядом с круглосуточным гипермаркетом «Евроопт» сейчас мелкая нарезка помещений, которую планируем объединить в единый контур. Будет возможность организовать два выхода: со стороны прикассовой зоны гипермаркета и с улицы со стороны ул. Дунина-Марцинкевича. Приложенная планировка носит иллюстрационный характер. Готовы обсуждать варианты. Коммерческие условия – договорные. Ждём ваших откликов и приглашаем к сотрудничеству!
Местоположение
- Область
- Населенный пункт
- Улица
- Номер дома
29
- Район города
- Микрорайон
- Координаты
53.9073, 27.4845
