Снять торговое помещение, г. Минск, ул. Нововиленская, 53
40 - 41 р./м²
Аренда
Следить за ценой
Торговое помещение
Тип
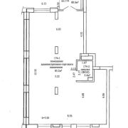
88.60 м²
Площадь
1 из 9
Этаж
15.05.2026ID 3449087
Описание
Сдаётся в аренду административно-торговое помещение в ЖК "Левада".
Помещение без отделки: на полу стяжка, стены - штукатурка, вывод электрики, сантехники.
Отдельный вход. Свободный доступ, без ограждений и калиток.
Может использоваться под аренду различных сфер торговли и услуг. Рядом большая парковочная зона. Арендная ставка 4080 руб./кв.м с НДС.
Дом сдан!
В наличии есть другие предложения по аренде административно-торговых помещений, а также помещения под кафе. Поможем подобрать помещение в аренду без дополнительных оплат.
Параметры объекта
- Тип объекта
Торговое помещение
- Площадь общая
88.60 м²
- Этаж / этажность
1 / 9
- Материал стен
Панельный
- Ремонт
Без отделки
- Отопление
Есть
- Электроснабжение
Есть
- Естественное освещение
Есть
- Вода
Есть
- Санузел
Есть
- Парковка
Есть
- Принадлежность объекта
Частная
- НДС
НДС включен
- Расположение
В жилом доме
- Новостройка
Да
- Номер договора
24/3а от 03.07.2023
Оснащение
Оживленное место
Примечание
Сдаётся в аренду административно-торговое помещение в ЖК "Левада". Помещение без отделки: на полу стяжка, стены - штукатурка, вывод электрики, сантехники. Отдельный вход. Свободный доступ, без ограждений и калиток.
Местоположение
- Область
- Населенный пункт
- Улица
- Номер дома
53
- Район города
- Микрорайон
- Координаты
53.937382925, 27.530164194
