Аренда помещения 320 м2, ул. Карла Маркса, 25
23 188 р.
- г. Минскул. Маркса, 25
- Купаловская
- На карте
Тип
Площадь
Этаж
Описание
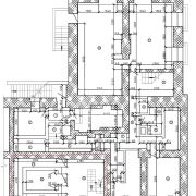
Торговое помещение 320 м2 занимает 1-й и цокольный этажи жилого дома, имеющего выгодное расположение: центр города, высокий пешеходный и автомобильный трафик, рядом метро (менее 5 мин) и остановки общественного транспорта, близость жилых кварталов, офисных зданий, культурно-развлекательных объектов (Олимпийский стадион «Динамо», Национальный музей и т.д.).
Возможно подвести вытяжку, водоснабжение под ваши нужды, установка рекламных конструкций на фасаде, летней террасы. Предоставляются арендные каникулы.
Возможно деление на 2 части (150 м2 и 170 м2)
Основные преимущества:
- Центр города, отличная инфраструктура;
- Высокий пешеходный и транспортный трафик;
- Транспортная доступность, метро «Купаловская» (5 мин) и «Площадь Ленина» (10 мин);
- 3 отдельных входа, круглосуточный доступ;
- Установка рекламных конструкций на фасаде, террасы;
- Парковка и удобство подъезда;
- Подведённая электрическая мощность 95 кВт;
- Центральное отопление, водоснабжение;
- 2 санитарных узла;
- Приточно-вытяжная вентиляция;
- Система кондиционирования;
- Пожарная сигнализация;
- Арендные каникулы
Помещение отлично подойдёт под торговый объект, объекты общепита, сферу услуг.
Организуем показ в удобное для Вас время!
Ответим на все вопросы, рассмотрим Ваши предложения!
Звоните!
Больше объявлений тут: www.instagram.com/garant.arenda
Напишите нам в удобный для Вас мессенджер:
Viber | Telegram | WhatsApp
Ответим на Ваши вопросы, предоставим всю необходимую дополнительную информацию.
ООО «Артель Недвижимость»
УНП 193820882
Лицензия Министерства Юстиции №48250000081913 06.03.2025 г.
Договор № 86/2а от 30.01.2026
Параметры объекта
- Тип объекта
Сфера услуг
- Площадь общая
320 м²
- Этаж / этажность
1 / 4
- Год постройки
1946
- Класс
B
- Раздельных помещений
10
- Материал стен
Кирпичный
- Высота потолков
3 м
- Ремонт
Без отделки
- Отопление
Есть
- Электроснабжение
Есть
- Электрическая мощность
95 кВт
- Естественное освещение
Есть
- Вода
Есть
- Санузел
Есть
- Парковка
Есть
- Принадлежность объекта
Частная
- НДС
НДС не включен
- Расположение
В жилом доме
- Номер договора
86/2а от 29.01.2026
Оснащение
Оживленное место
Отдельный вход
Гарант Недвижимость
Контактное лицо
Примечание
Местоположение
- Область
- Населенный пункт
- Улица
- Номер дома
25
- Район города
- Микрорайон
- Координаты
53.8982, 27.5577
