Торговое помещение в центре г. Минска (ул. А. Пашкевич, 5)
4 878 р.
90 р.≈ 32 $ за м²
Тип
Площадь
Этаж
Описание
Предлагаем Вашему вниманию торговое помещение, расположенное по адресу:
г. Минск, ул. Алоизы Пашкевич, 5.
Общие характеристики объекта:
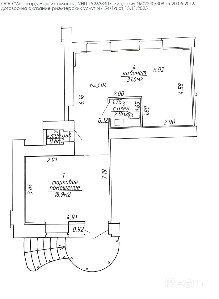
- площадь помещения – 54,2 кв. м;
- располагается на первом этаже жилого дома;
- отдельный вход с доступом 24/7;
- состоит из двух торговых залов, санузла и подсобного помещения;
- высота потолков – 3.05 м;
- помещение с высоким уровнем естественного и искусственного освещения;
- дом «Сталинка» после кап. ремонта (не относится к ИКЦ);
- приемлемые коммунально-эксплуатационные платежи.
Инженерные коммуникации:
- выделенная мощность – до 10 кВт;
- имеется приточно-вытяжная вентиляция;
- отдельные счетчики учета электроэнергии, потребления воды (счетчик воды с дистанционным съемом показаний);
- установлен накопительный бойлер;
- заведено оптоволокно;
- действующая пожарная сигнализация «Молния»;
- имеется вывод кнопки охранной сигнализации;
- установлено видеонаблюдение.
Локация:
Объект располагается в центральной части г. Минска (напротив заднего фасада Большого Театра Беларуси).
200 метров до остановок общественного транспорта.
900 метров до ст. м «Немига».
Плоскостная парковка вблизи здания.
Собственник неплательщик НДС.
Арендатор не оплачивает услуги агентства.
Звоните прямо сейчас!
Параметры объекта
- Тип объекта
Сфера услуг
- Площадь общая
54.20 м²
- Этаж / этажность
1 / 4
- Год постройки
1935
- Раздельных помещений
1
- Материал стен
Кирпичный
- Ремонт
Хороший
- Отопление
Есть
- Электроснабжение
Есть
- Естественное освещение
Есть
- Вода
Горячая
- Санузел
Есть
- Количество телефонов
1 телефон
- Принадлежность объекта
Частная
- НДС
НДС не включен
- Расположение
В жилом доме
- Номер договора
154/1а от 12.11.2025
Оснащение
Сигнализация
Интернет
Отдельный вход
Владислав Апенок
Агент по недвижимости
Примечание
Местоположение
- Область
- Населенный пункт
- Улица
- Номер дома
5
- Район города
- Координаты
53.9116, 27.5616
