Сдается коммерческое помещение в центре города по адресу: пр-т Победителей, 27.
24 р./м²
- г. Минскпросп. Победителей, 27
- Фрунзенская
- На карте
Тип
Площадь
Этаж
Описание
Сдается коммерческое помещение в центре города по адресу: пр-т Победителей, 27. Это предложение идеально подходит как для инвесторов, так и для предпринимателей, стремящихся развивать свой бизнес в удачном месте.
Основные характеристики:
- Адрес: проспект Победителей 27
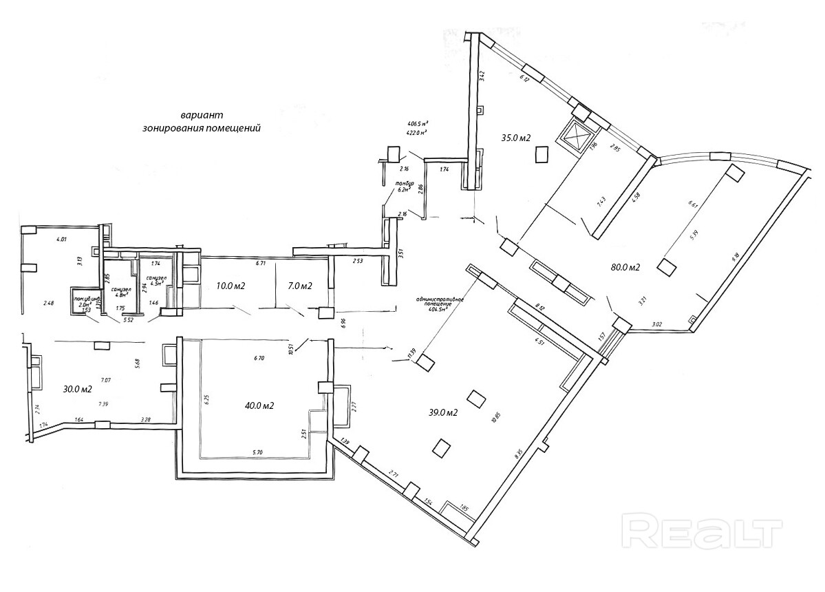
- Площадь: 422 м2
- Статус: Помещение с действующим арендатором
- Формат: Разделено на офисные блоки
Предлагаем вашему вниманию уникальное коммерческое помещение, расположенное в самом сердце города. Это предложение идеально подходит как для инвесторов, так и для собственников, желающих расширить свой бизнес. Помещение с арендатором гарантирует стабильный доход и минимизирует риски.
Преимущества помещения:
Удобное расположение:
- Высокая проходимость и видимость.
- Наличие рядом развитой инфраструктуры: кафе, магазины, банки, транспортные остановки.
- Удобный доступ к основным транспортным артериям города.
Планировка:
- Помещение выполнено по кабинетной системе, что позволяет эффективно организовать рабочие процессы.
- Изолированные кабинеты обеспечивают комфортные условия для работы и конфиденциальности.
- Зона отдыха и кухня создают уютную атмосферу для сотрудников и посетителей.
Арендатор:
- Помещение уже сдается в аренду надежному арендатору, что обеспечивает стабильный доход.
- Долгосрочный договор аренды с возможностью продления.
- Арендатор зарекомендовал себя как надежный партнер, что делает данное предложение особенно привлекательным для инвесторов.
Техническое состояние:
- Помещение находится в отличном состоянии, готово к эксплуатации.
- Современные системы отопления, вентиляции и кондиционирования обеспечивают комфорт в любое время года.
- Высокие потолки и большие окна создают светлую и просторную атмосферу.
Инвестиционная привлекательность:
Инвестиции в коммерческую недвижимость на проспекте Победителей — это надежный способ сохранить и приумножить капитал. С учетом роста цен на недвижимость и увеличения спроса на аренду офисных помещений в центре города, ваше вложение будет приносить стабильный доход и со временем увеличивать свою стоимость.
На период с 7 по 19 августа связываться по мессенджерам whatsp, telegram, viber.
Лицензия: 02240/446 от 11.07.2022, Министерство юстиции РБ
Параметры объекта
- Тип объекта
Сфера услуг
- Площадь общая
422 м²
- Этаж / этажность
2 / 4
- Год постройки
2012
- Материал стен
Блочный
- Ремонт
Хороший
- Отопление
Есть
- Электроснабжение
Есть
- Вода
Есть
- Санузел
Есть
- Парковка
Есть
- Принадлежность объекта
Частная
- НДС
НДС включен
- Номер договора
8/1А от 16.07.2025
Оснащение
Оживленное место
Фаттория
Контактное лицо
Примечание
Местоположение
- Область
- Населенный пункт
- Улица
- Номер дома
27
- Район города
- Координаты
53.9119, 27.5402
