Аренда изолированного помещения (кафе) с высоким пешеходным трафиком.
11 633 р.
Тип
Площадь
Этаж
Описание
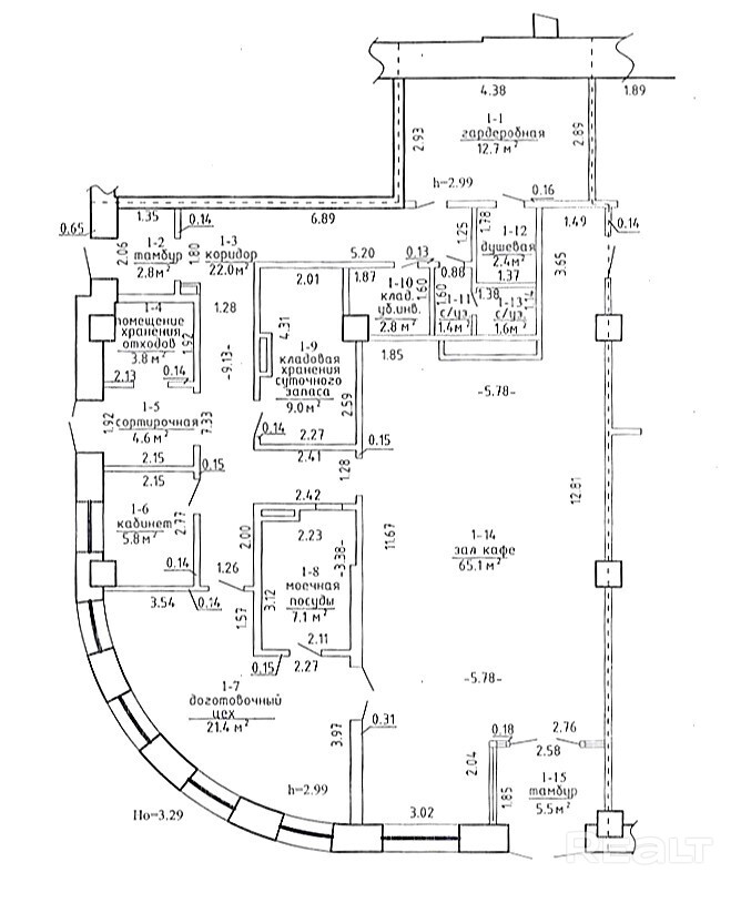
Аренда помещения (общественного питания) 168кв.м. по адресу: д. Копище, ул. Лопатина, 7А/1 (в 15 минутах пешком находится станция метро Уручье).
Помещение расположено на первом этаже в бизнес-центре «Премьер», что обеспечивает постоянный высокий пешеходный и автомобильный трафик. Идеально подходит для размещения кофейни, пекарни, магазинов разной группы товаров, сферы услуг.
Для удобства предусмотрено два входа в помещение: со стороны улицы и бизнес-центра.
Доступ – 24/7.
Потолки 3 метра, панорамное остекление, на полу – плитка, стены – окрашены, система приточно-вытяжной вентиляции (система очистки и кондиционирования «Электролюкс»).
Оптоволокно, видеонаблюдение, электроснабжение, центральное отопление.
Установлен кондиционер.
Просторная парковка возле БЦ, либо в крытом паркинге.
Возможна установка рекламных конструкций на фасадной части здания.
Рядом со входом оборудован отдельно стоящий навес для возможности организовать посадочные места на свежем воздухе.
В 100 м от ЖК расположен ТЦ с большим продуктовым магазином «Грин», аптекой, зоотоварами, магазином цветов и игрушек.
В 15 минутах пешком (по ул. Ложинская) находится станция метро Уручье. Удобный выезд на МКАД, в 7 минутах от комплекса строительный рынок «Уручье», ТЦ «Дмитриев Кирмаш», 27 городская поликлиника, «Новая Боровая».
Цена указана с НДС.
Арендатор не оплачивает услуги агентства!
Параметры объекта
- Тип объекта
Кафе
- Площадь общая
168 м²
- Этаж / этажность
1 / 16
- Год постройки
2016
- Раздельных помещений
1
- Материал стен
Монолитный
- Высота потолков
3 м
- Ремонт
Хороший
- Отопление
Есть
- Электроснабжение
220В
- Естественное освещение
Есть
- Вода
Есть
- Санузел
Есть
- Расположение
В бизнес центре
- Номер договора
20/3а от 22.02.2026
Оснащение
Отдельный вход
Риэлтерский центр Столицы
Контактное лицо
Примечание
Местоположение
- Область
- Район
- Населенный пункт
- Улица
- Номер дома
7/А
- Сельсовет
Боровлянский с/с
- Направление
Московское, 4 км от МКАД
- Координаты
53.9534, 27.6781
