Аренда административного здания в престижной локации
26 р./м²
- г. Минскул. Волгоградская, 6
- Московская
- 5 минут
- На карте
Тип
Площадь
Описание
Аренда административного здания в престижной локации
Адрес: г. Минск, ул. Волгоградская, 6
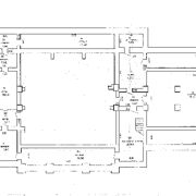
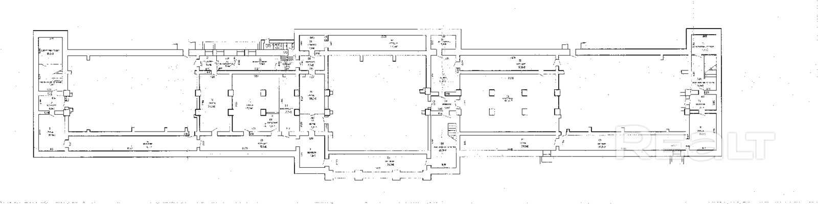
Площадь общая: 4 390,4 м2
Историческое отдельно стоящее здание с архитектурными решениями в стиле эпохи СССР - конструктивизм, рационализм, ар-деко. Административные помещения расположены на 1, 2, 3 и подвальном этажах трехэтажного кирпичного административного здания 1955 года постройки.
Характеристики:
- Просторные помещения
- Статусная локация
- Удобное расположение, метро Московская
- Близость к центру города
- Актовый зал со сценой
- Высокая инсоляция
- Санузлы
- Освещение, отопление
- Наземная просторная парковка
Удобные подъездные пути – рядом расположены остановки общественного транспорта, ст. метро Московская в 380 м.
В шаговой доступности расположены множество магазинов, кафе, кофеен, рестораны, аптеки, банк, медицинский центр - развитая инфраструктура.
Арендатор не оплачивает услуги риэлтерской организации!
Ваш агент – Андрей Смолка
Больше предложений на САЙТЕ Silvan7800.by
Присоединяйтесь к нам в соцсетях:
Договор № 3/3а от 14.01.2026 по 13.01.2028
ООО «Сильван-Инвест», УНП 192927433, лицензия №02240/383, Министерство юстиции РБ, 24.09.2019.
Параметры объекта
- Тип объекта
Здание
- Площадь участка
3.14 сотки
- Площадь общая
4390.40 м²
- Этажность
3
- Год постройки
1955
- Материал стен
Кирпичный
- Высота потолков
3 м
- Отопление
Есть
- Электроснабжение
Есть
- Естественное освещение
Есть
- Вода
Есть
- Санузел
Есть
- Количество телефонов
Больше пяти
- Парковка
Есть
- Принадлежность объекта
Частная
- НДС
НДС нет (0%)
- Юридический адрес
Да
- Номер договора
3/3а от 13.01.2026
Оснащение
Оживленное место
Отдельный вход
ООО "Сильван-Инвест"
Контактное лицо
Примечание
Местоположение
- Область
- Населенный пункт
- Улица
- Номер дома
6
- Район города
- Микрорайон
- Координаты
53.929939, 27.625334
