Аренда административных помещений. пер. Липковский 34
16 р./м²
Тип
Площадь
Описание
Аренда административных помещений
Адрес: г. Минск, пер. Липковский, д. 34
Площадь: от 705 м2 до 2127,4 м2
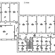
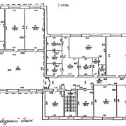
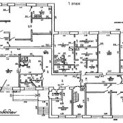
Изолированные помещения: 705,7 м2 - на 2 этаже, 717,4 м2 - на 3 этаже, 705 м2 - на 4 этаже.
• закрытая охраняемая территория. Въезд под шлагбаум
• в помещениях выполнен ремонт, наличие оптоволоконной сети;
• приточно-вытяжная вентиляция, в некоторых кабинетах установлены кондиционеры;
• большая удобная парковка возле здания;
• рядом расположены столовая, кафе, в пешей доступности остановка общественного транспорта.
064,28 Га. Право постоянного пользования.
Арендатор не оплачивает услуги риэлтерской организации!
Ваш агент – Андрей Смолка.
Больше предложений на САЙТЕ Silvan7800.by
№144/3а от 11.12.2024 до 10.12.2026
Параметры объекта
- Тип объекта
Офис
- Площадь общая
705 - 2127.40 м²
- Ремонт
Хороший
- Отопление
Есть
- Электроснабжение
Есть
- Естественное освещение
Есть
- Вода
Есть
- Санузел
Есть
- Парковка
Есть
- Принадлежность объекта
Частная
- НДС
НДС включен
- Юридический адрес
Да
- Номер договора
144/3а от 10.12.2024
Оснащение
Оживленное место
Сигнализация
Отдельный вход
Интернет
Мебель
ООО "Сильван-Инвест"
Контактное лицо
Примечание
Местоположение
- Область
- Населенный пункт
- Улица
- Номер дома
34
- Район города
- Координаты
53.9197, 27.7077
