Помещение под офис/магазин (220,8 кв.м.) возле пр-та Партизанского
5 740 р.
26 р.≈ 9 $ за м²
- Минская областьМинский р-нд. Большое Стиклево40/1
- На карте
Тип
Площадь
Этаж
Описание
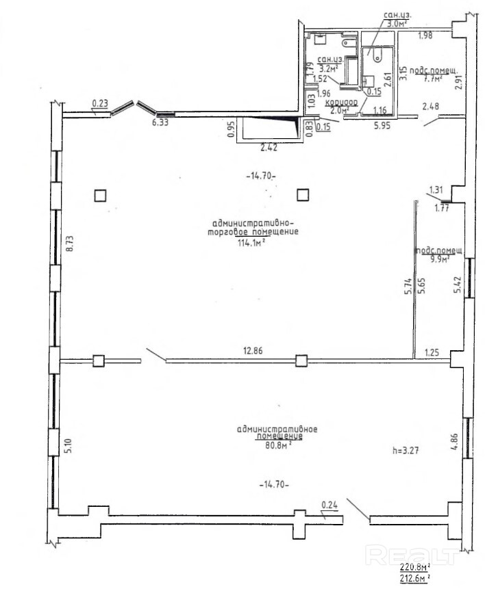
Помещение общей площадью 220,8 кв.м. расположено на 3-м этаже в оживленном многофункциональном комплексе и подойдет как для размещения офиса, так и для организации пункта торговли.
На объекте проведены коммуникации:
- электроснабжение
- отопление
- канализация
- водоснабжение
- вентиляция
- интернет
Удобный заезд для всех видов транспорта, асфальтированные подъездные пути, разворотная площадка для крупногабаритного транспорта, большая парковка, видеонаблюдение, доступ 24/7.
В непосредственной близости находится большое количество торговых объектов, складские комплексы, БЦ S.Union.
Есть возможность аренды торговых помещений на 1-м этаже:
- 203,8 кв.м.
- 264,4 кв.м.
Если вас заинтересовало предложение, позвоните нам и мы ответим на все ваши вопросы!
Арендатор не оплачивает услуги риэлтерской организации!
Параметры объекта
- Тип объекта
Офис
- Площадь общая
220.80 м²
- Этаж / этажность
3 / 3
- Год постройки
2013
- Раздельных помещений
2
- Высота потолков
3 м
- Ремонт
Хороший
- Отопление
Есть
- Естественное освещение
Есть
- Вода
Есть
- Санузел
Есть
- Парковка
Есть
- Принадлежность объекта
Частная
- НДС
НДС включен
- Расположение
В бизнес центре
- Юридический адрес
Да
- Номер договора
53/1а от 16.02.2026
Оснащение
Охрана
Видеонаблюдение
Интернет
Отдел коммерческой недвижимости
Контактное лицо
Примечание
Местоположение
- Область
- Район
Минский район
- Населенный пункт
- Номер дома
40/1
- Сельсовет
Новодворский с/с
- Направление
Могилёвское, 1.1 км от МКАД
- Координаты
53.862041526, 27.686663395
