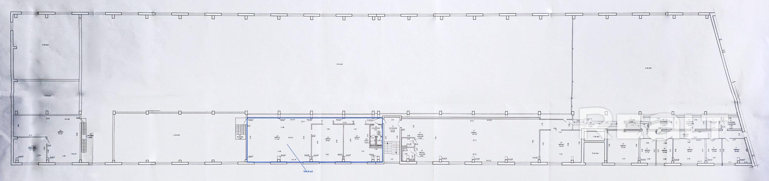
Аренда помещения 199.8 м2-в Бизнес-квартале New Place по пр. Машерова, 15
9 360 р.
Аренда
Следить за ценой
- г. Минскпросп. Машерова, 15
- Площадь Победы
- На карте
Офис
Тип
199.80 м²
Площадь
2
Этаж
31.03.2026ID 4015836
Описание
Помещение в бизнес-квартале New Place в Минске по адресу пр. Машерова, 15.
Особенности?
-Круглосуточный доступ
-Все коммуникации есть (отопление, эл-во, подвод воды)
Назначение?
- Можно использовать под ресторан, кафе, бутик, салон красоты, фитнес, офис или арт-пространство. Если у вас есть альтернативные идеи, пишите, будем рады обсудить как лучше вас разместить
Дополнительные затраты?
Коммунальные по потреблению (вода, отопление, эл-во)
Эксплуатация
Парковка
Есть вопросы?
Хотите посмотреть? Набирайте! Покажем помещения и заодно проведем для вас экскурсию по всему проекту :)
Параметры объекта
- Тип объекта
Офис
- Площадь общая
199.80 м²
- Этаж
2
- Материал стен
Кирпичный
- Ремонт
Хороший
- Отопление
Есть
- Электроснабжение
Есть
- Естественное освещение
Есть
- Вода
Есть
- Санузел
Есть
- Парковка
Есть
- Принадлежность объекта
Частная
- НДС
НДС включен
Оснащение
Оживленное место
Интернет
Арендодатель
(собственник)
Контактное лицо
Примечание
Бизнес-квартал New Place с офисами, торговыми помещениями, культурными площадками; в лофт-стиле в Минске по адресу пр. Машерова, 15. Помещение площадью 199.8 м2.
Местоположение
- Область
- Населенный пункт
- Улица
- Номер дома
15
- Район города
- Координаты
53.9149, 27.567
