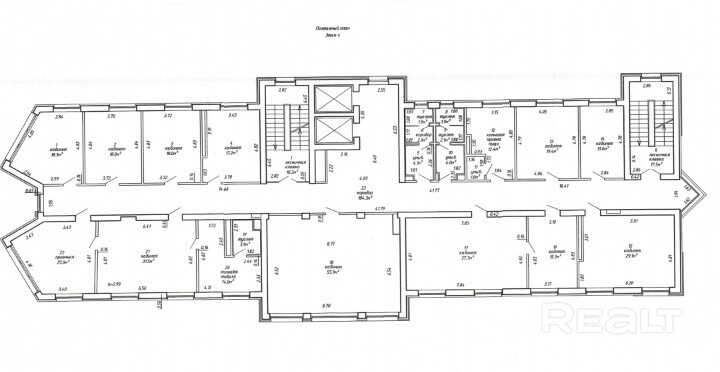
Сдаются в аренду помещения. Минск, ул.Вирская, 44, 4 этаж. Общая площадь помещений 231,1 м2
30 р./м²
Аренда
Следить за ценой
- г. Минскул. Вирская, 44
- Институт культуры
- 15 минут
- На карте
Офис
Тип
231.10 м²
Площадь
4 из 6
Этаж
12.01.2026ID 4006035
Описание
Сдаются в аренду помещения. Минск, ул.Вирская, 44, 4 этаж. Общая площадь помещений 231,1 м2, возможна аренда частями. Площади имеющихся помещений – 17,2 м2, 19,4 м2, 25 м2, 31,5 м2, 55,9 м2, 37,7 м2, 29,1 м2.
Арендная ставка 30 руб/м2, цена указана с НДС.
Назначение – под офисные помещения
Помещения расположены на 4 этаже здания. Здание в удобной локации с большим пешеходным трафиком. Рядом со зданием остановка общественного транспорта, парковка, банк, неподалёку густонаселённый жилой квартал.
На 1м этаже здания находится проходная.
Лицензия: №02240/362 МЮ РБ, 31.07.2018
Параметры объекта
- Тип объекта
Офис
- Площадь общая
231.10 м²
- Этаж / этажность
4 / 6
- Материал стен
Кирпичный
- Высота потолков
2.7 м
- Ремонт
Хороший
- Отопление
Есть
- Электроснабжение
Есть
- Естественное освещение
Есть
- Вода
Есть
- Санузел
Есть
- Принадлежность объекта
Частная
- НДС
НДС включен
- Расположение
В бизнес центре
- Юридический адрес
Да
- Номер договора
139/1А от 14.09.2025
Фаттория Плюс
Контактное лицо
Примечание
Сдаются в аренду помещения. Минск, ул.Вирская, 44, 4 этаж. Общая площадь помещений 231,1 м2, возможна аренда частями.
Местоположение
Институт культуры15 минут
- Область
- Населенный пункт
- Улица
- Номер дома
44
- Район города
- Микрорайон
- Координаты
53.8775, 27.5299
