Аренда помещений от 24,9 кв.м. в центре г. Минска (метро Институт Культуры)
от 996 р.
30 - 39 р.≈ 11 - 14 $ за м²
- г. Минскул. Фабрициуса, 8/1Б
- Институт культуры
- На карте
Тип
Площадь
Этаж
Описание
Сдаются в аренду помещения общей площадью от 24,9 кв.м. в центре Минска по адресу: г. Минск, ул. Фабрициуса, 8Б, корп. 1.
Удобная кабинетная планировка.
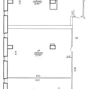
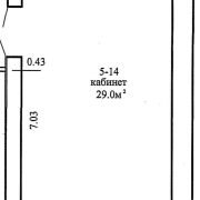
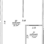
Площади помещений разные: 24,9; 33,4; 33,9; 39,3; 53,7; 56,6; 56,8; 59,7; 61,3; 85,3; 87,2; 98,3; 143,9; 148,5 и др. Можно объединять несколько помещений. Можно разделять.
Планировки всех свободных помещений прикреплены к объявлению.
Для получения более подробной информации звоните или пишите в мессенджеры.
Потолки 4,5 метра.
Имеются оборудованные помещения для приема пищи, под переговорные, серверную, ресепшен.
Парковка на прилегающей территории здания.
Евроремонт, современная отделка, своевременное обслуживание инженерных систем.
Круглосуточная охрана, система контроля и управления доступом (СКУД), видеонаблюдение, компьютерная сеть, скоростной интернет (заведены 5 провайдеров: Белтелеком, Деловая сеть, МТС, Айпителком, Космос ТВ), приточно-вытяжная вентиляция, кондиционирование в каждом помещении, местная телефонная сеть (имеется лицензия на оказание услуг связи).
Лифты (пассажирский и грузовой), 2 санузла на этаже.
В здании находится магазин Fix price, также функционирует кафе.
Развитая инфраструктура. В шаговой доступности магазины (Хит, Соседи, Мегатоп, Мила и др.), различные объекты общественного питания (KFC, Штолле, Cofix, БАР #ПП, столовые государственных предприятий и учреждений: Белмедпреппараты, Метрополитен, Институт культуры), банки (ВТБ, БелВэб), объекты сферы бытовых услуг (Дом быта и др.).
Отличное транспортное сообщение, в 5 минутах ходьбы ст.м. «Институт Культуры», «Вокзальная», «Площадь Франтишка Богушевича».
Арендная плата указана уже с учетом НДС 20%.
В арендную плату включены все эксплуатационные расходы, связанные с обслуживанием здания.
Отдельно подлежат возмещению только фактически потребленные коммунальные услуги (электроэнергия, вода, подогрев воды, отопление в зимний период).
Объявление размещено от собственника, заключение договора аренды происходит напрямую без участия риэлтерских организаций.
По всем возникшим вопросам звоните по телефону, указанному в объявлении (пишите в любой из мессенджеров).
Параметры объекта
- Тип объекта
Офис
- Площадь общая
24.90 - 500 м²
- Этаж / этажность
2 / 8
- Год постройки
2004
- Класс
B
- Материал стен
Монолитный
- Высота потолков
4 м
- Ремонт
Хороший
- Отопление
Есть
- Электроснабжение
Есть
- Естественное освещение
Есть
- Вода
Есть
- Санузел
Есть
- Оборудование
Есть
- Количество телефонов
Больше пяти
- Парковка
Есть
- НДС
НДС включен
- Расположение
В бизнес центре
- Юридический адрес
Да
Оснащение
Кондиционер
Охрана
Сигнализация
Видеонаблюдение
Компьютерная сеть
Интернет
Рампа
Отдельный вход
Арендодатель
Сергей
Контактное лицо
Примечание
Местоположение
- Область
- Населенный пункт
- Улица
- Номер дома
8/1Б
- Район города
- Микрорайон
- Координаты
53.889476388, 27.536545255
