Купить 1-комнатную квартиру, г. Осиповичи, ул. Рабоче-Крестьянская, 5
79 490 р.
2 315 р.≈ 836 $ за м²
Общая
Жилая
Кухня
Этаж
Описание
Продается 1-комнатная квартира, г.Осиповичи, ул.Рабоче-Крестьянская д.5
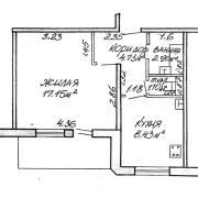
Квартира расположена на комфортном 3-ем этаже пятиэтажного панельного дома (1989 г.), в 2024 году отремонтировали подъезд. Площадь общая 34.32м2, площадь жилой комнаты 17.1м2, большая кухня 8.43 м2, высота потолков 2.5м, санузел раздельный, просторная лоджия застеклена раздвижной алюминиевой рамой.
Хорошее жилое состояние. Установлены стеклопакеты ПВХ, металлическая входная дверь, заменена электропроводка на новую, медную. Есть розетка оптоволокно, домофон, счетчики на воду, газ центральный.
Дом расположен в удобном месте с хорошим транспортным сообщением и развитой инфраструктурой. В шаговой доступности 5-10минут пешком находятся авто и ж/д вокзалы. Поезда эконом класса и маршрутки очень быстро и комфортно вас доставят в любом направлении.
Рядом с домом находятся: садик, школа, почтовое отделение связи, аптека, отделение "Беларусбанк". Недалеко расположены Городская больница и поликлиника, магазины продуктовые (один из них "Евроопт") и хозяйственные.
Сделайте шаг навстречу своей мечте! Звоните, согласуем удобное время осмотра. На все Ваши вопросы ответим по телефону либо при встрече на просмотре квартиры. Поможем выгодно продать вашу недвижимость для покупки данного объекта. Бесплатно проконсультируем, окажем профессиональную помощь в сложных вопросах с недвижимостью, обеспечим юридическое сопровождение сделки и безопасность взаиморасчетов. Квалифицированные специалисты с большим опытом работы.
ОДО "Риэлтерский Дом", г.Минск, ул.Берестянская д.12 оф.110, 111. УНП 190113134, лицензия на право осуществления деятельности по оказанию юридических услуг (риэлтерские услуги) №02240/55 выдана 06.06.2005 Министерством юстиции Республики Беларусь, договор №8/1 от 18.03.2026
Параметры объекта
- Количество комнат
1
- Площадь общая
34.32 м²
- Площадь жилая
17.1 м²
- Площадь кухни
8.43 м²
- Год постройки
1989
- Год капитального ремонта
2024
- Этаж / этажность
3 / 5
- Тип дома
Панельный
- Планировка
Брежневка
- Балкон
Лоджия
- Ремонт
Хороший
- Высота потолков
2.5 м
- Санузел
Раздельный
- Стоянка автомобиля
Есть
- Собственность
Частная
- Условия продажи
Чистая продажа
- Номер договора
8/1 от 17.03.2026
- Вид из окон
Во двор
Примечание
Местоположение
- Область
- Район
- Населенный пункт
- Номер дома
5
- Координаты
53.295, 28.6355
