«НикаПроект» выставил на продажу первые 20 квартир нового ЖК на пересечении проспектов Жукова и Дзержинского. Цена за метр — от $ 1480

20.12.2019 5 12414

Застройщик «НикаПроект» выставил на продажу 20 квартир в своем новом жилом комплексе, который строит на месте частного сектора в районе пересечении ул. Прилукской — ул. Глаголева — пр. Жукова в Минске. Проектная декларация опубликована в газете «Минский курьер».

Напомним, 23 января 2019 года в Минском городском центре недвижимости состоялся аукцион по продаже участка на право проектирования и строительства жилого дома со встроенными помещениями общей площадью 2,1790 гектара. Земельный надел расположен на пересечении ул. Прилукской — ул. Глаголева — пр. Жукова и предоставлен застройщику в аренду на 5 лет. Участок был оценен в 755.097,30 рубля.

На лот было подано 4 заявки. В упорной борьбе победителем аукциона стал частный проектный институт «НикаПроект». Участок ему обошелся в кругленькую сумму — 7 миллионов 260 тысяч рублей, или 3 миллиона 370 тысяч 630 долларов США по курсу Нацбанка на день проведения аукциона.

Участок имел обременения. Снос 22 жилых и нежилых строений на ул. Прилукской, ул. Талаша, ул. Глаголева и по пер. 3-му Глаголева государство оценило ориентировочно в 5 миллионов рублей. Отметим, что застройщик уже завершил расселение усадебных домов, подпадающих под первую очередь строительства жилого комплекса. Переехали все 15 семей — жители частных домов по улице Прилукской и пер. 3-му Глаголева. Все, чьи дома пошли под снос, получили квартиры типовых потребительских качеств или денежную компенсацию.

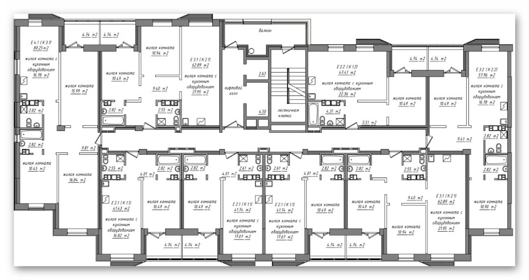
Первая очередь строительства представляет собой одну 14-этажную секцию многоквартирного жилого каркасно-монолитного дома с площадками для парковки автомобилей, велопарковой, площадкой для игр детей. Всего в первой очереди строительства представлены 104 квартиры:

— 52 однокомнатные площадью от 38,93 до 49,33 кв.м.

— 39 двухкомнатных квартир площадью от 55,46 до 66,12 кв.м.

— 13 трехкомнатных квартир площадью от 77,75 до 84,06 кв.м.

Жилые помещения передаются с черновой внутренней отделкрй: штукатурка стен и перегородок, стяжка пола, разводка и установка розеток и т. д.

Пока на продажу выставлены только 20 квартир по цене $ 1480 за квадратный метр. Условия оплаты: 100% стоимость объекта долевого строительства в течении 5 рабочих дней с момента регистрации договора. По соглашению сторон дольщику могут быть предоставлены скидки от общей стоимости квартиры либо иные условия оплаты объекта.

Также на сайте застройщика появились варианты планировок квартир с актуальными ценами.

Общий план этажа
Квартира 41.74 м². Стоимость 55 100 $
Квартира 47.41 м². Стоимость 64 000 $
Квартира 57.96 м². Стоимость 73 030 $
Квартира 62.89 м². Стоимость 79 240 $
Квартира 80.25 м². Стоимость 88 275 $
Дворовая территория

Читать:
Поделиться: