В Колодищах продается современный дом с мансардным этажом. Показываем, что там внутри

03.12.2024 15558

В Колодищах выставлен на продажу добротный коттедж с жилым мансардным этажом. Внутри все сделано на современный лад. Комнаты обставлены мебелью и техникой. Осталось лишь переехать и позвать друзей в гостевой домик, что построен на большом участке. Посмотрите, как все это выглядит, а главное — сколько стоит.

Дом, выставленный на продажу, располагается в Колодищах на Рублевском переулке, 16. Его возвели в 2017 году в два этажа. Второй уровень — мансардный. Общая площадь дома — 207,8 м². Стены из газосиликатных блоков стоят на монолитном фундаменте. На крыше лежит кровля из металлочерепицы.

Внутри пол частично отделан деревом. В окнах стоят энергосберегающие стеклопакеты.

На первом этаже разместились большая кухня-гостиная и три жилые комнаты. Из-за того, что в доме сделан второй свет, высота потолков в гостиной достигает 6 метров.

Из технических помещений здесь есть санузел, оборудованы топочная и постирочная.

Кстати, в доме после продажи остается мебель и техника.

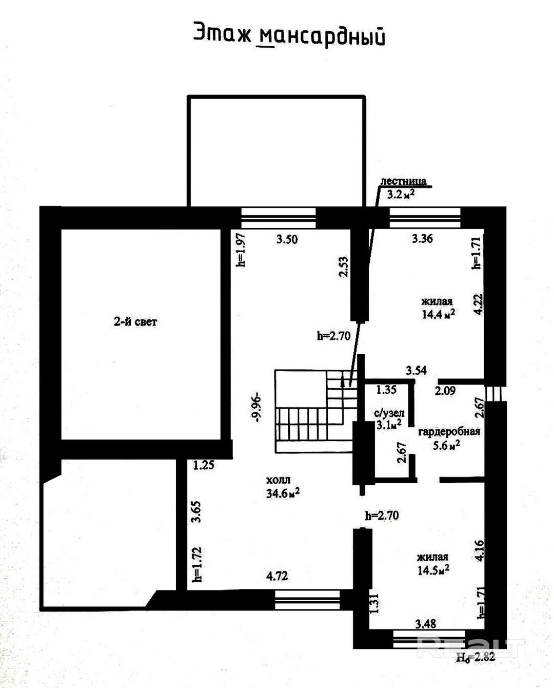
На втором этаже обустроен общий холл и две отдельные комнаты. Между ними расположились гардеробная и санузел.

Отапливается коттедж на газу. В топочной стоит газовый котел, установлены насосные группы и радиаторы. Помогают поддерживать температуру и теплые полы.

Введены вода из скважины и местная канализация.

Из первого этажа можно выйти на открытую и закрытую террасу. Они находятся на противоположных сторонах дома.

На участке также построено отдельное гостевое двухэтажное жилье со столовой и спальней.

Огороженная территория занимает почти 15 соток. Все выглядит ухожено: растут деревья, сделаны дорожки, место для посиделок у костра. Также здесь стоят деревянная хозпостройка с мастерской и теплица.

Достаточно быстро можно добраться до города. Рядом находятся магазины, школа и детский сад.

Стоимость дома — 335 тысяч долларов.

Читайте также:

Светлый лофт. Смотрите, какая квартира с двумя санузлами продается недалеко от центра Минска

Между Минском и Логойском продается дом с баней и погребком у леса. Что по цене?

«Продавцам надо идти на уступки». Эксперты — о рынке квартир при выросшем курсе доллара

Читать:
Поделиться: