От 11 тысяч долларов — есть в центре и с ремонтом. Посмотрели, какие комнаты продают в Минске

29.08.2023 2991

Сейчас в Минске продается около 200 комнат. Цены — от 10 до 80 тысяч долларов (столько стоит половина четырехкомнатной квартиры). Интересно, что рынок комнат в столице — достаточно живой. Чаще всего комнаты покупают те, кто нуждается в постоянном жилье, но не имеет возможности приобрести отдельную квартиру. Например, это могут быть студенты, люди после развода или разъезда, молодые семьи. Иногда комнаты приобретают с целью дальнейшего выкупа всей квартиры (о нюансах покупки комнат нам как-то рассказывал специалист). Мы посмотрели, какие комнаты продаются сейчас в Минске и выбрали самые интересные варианты.

Самая недорогая

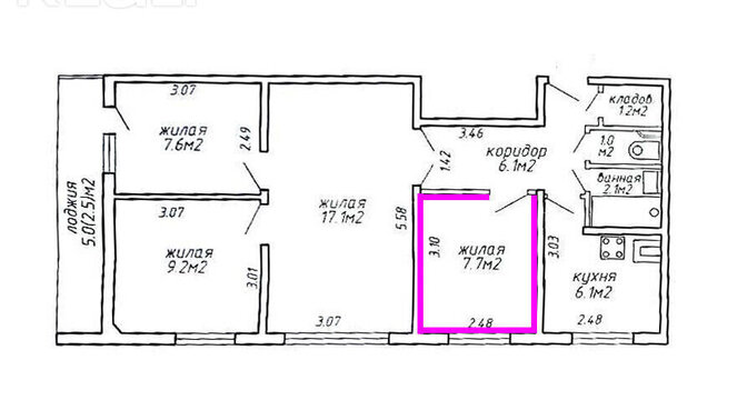
Эта «маленькая да удаленькая» комната расположена в Чижовке — на улице Голодеда, 1 в пятиэтажном доме на первом этаже. Площадь комнаты — 7,7 «квадрата».

Несмотря на скромные размеры, это жилье продумано до мелочей. Тут сделан ремонт, установлен новый стеклопакет и межкомнатная дверь из натурального массива, положен утепленный линолеум, натянуты потолки с новыми потолочными люстрами и потолочным карнизом в комнате. В комнате есть диван-кровать (по утверждению автора объявления он может вместить 3 человек), телевизор, холодильник, шкаф с полочками, микроволновая печь. Стоимость — 11,7 тысяч долларов.

В коммуналке

Если человека устраивает небольшая площадь, то комната в коммунальной квартире — не самый худший вариант. Все дело в том, что кухня, санузел, да и сами жильцы тут адаптированы к совместному проживанию. Так, прямо сейчас продается стандартная комната в «коммуналке» на улице Филатова, 18.

Площадь комнаты составляет 10,8 «квадрата». На входе в комнату установлена металлическая дверь с замком, в саму комнату проведена вода (есть своя раковина), окно — стеклопакет. Рядом — два магазина, аптека, банк, поликлиника, до станции метро «Партизанская» − 8 минут пешком, до универмага «Беларусь» − 10 минут пешком. Стоимость — 15 тысяч долларов.

В перспективном районе

Следующая комната расположена в трехэтажном доме на улице Брилевской — прямо напротив Минск Мира. Площадь комнаты в трешке — 15,4 «квадрата». Светлая комната с интересным арочным окном и лоджией находится на третьем этаже.

Среди плюсов квартиры — отремонтированный санузел, уютная кухня, хорошие соседи (проживает одна женщина), отличная инфраструктура — рядом магазины, аптеки, ДК Железнодорожников, ТЦ «Outleto». Стоимость — 22 тысячи долларов.

С ремонтом

Следующая уютная комната находится в 3-комнатной квартире в доме на Логойском тракте.

Площадь продаваемой комнаты — 13,9 «квадрата» (выделенная). В квартире сделан свежий ремонт − новые стеклопакеты, новые межкомнатные двери, металлическая входная дверь. Санузел в квартире − раздельный. Места общего пользования − кухня, ванная, туалет, два встроенных шкафа, коридор. Комната полностью готова к проживанию. Лицевые счета разделены. Стоимость — 26 тысяч долларов.

В центре

Данная комната находится прямо в центре Минска — на улице Красноармейской, 8.

Речь идет о части двухкомнатной квартиры (1/3 долей в праве собственности). Новому собственнику достанется комната площадью 16 «квадратов» с окнами на улицу. Квартира располагается на третьем этаже четырехэтажной кирпичной «сталинки». В квартире — высокие потолки и просторный коридор. В шаговой доступности от дома − станции метро «Купаловская» и «Октябрьская». Рядом — магазины, кафе, театры. Организован контролируемый въезд на территорию двора — шлагбаум. Стоимость — 30 тысяч долларов.

Читать:
Поделиться: