Госзастройщик предлагает три отказные однушки в строящемся доме на Притыцкого. Узнали условия и цены

19.04.2022 9751

На улице Притыцкого в Минске продолжается строительство двух «каркасников» на 17 и 20 этажей. Проектные декларации по домам выходили еще в прошлом году и тогда большинство квартир раскупили. Сегодня «Минскстрой» через свой телеграм-канал предложил к долевому строительству 3 отказные однушки в доме 24б. Претендовать на жилье могут все желающие.

Напомним, что два монолитно-каркасных дома в границах улиц Притыцкого, Скрипникова, Одинцова и Лобанка строятся тут с 2020 года. Жилые дома располагаются рядом со станцией метро «Каменная Горка», торговым центром «Грин Сити» и строительным гипермаркетом «Материк».

Дом 24б будет 20-этажным на 3 подъезда и 277 квартир. Возле него разместится гараж-стоянка на 300 автомобилей. В данный момент новостройка уже возведена, идут фасадные и внутренние работы. Сдать дом в эксплуатацию планируется в августе.

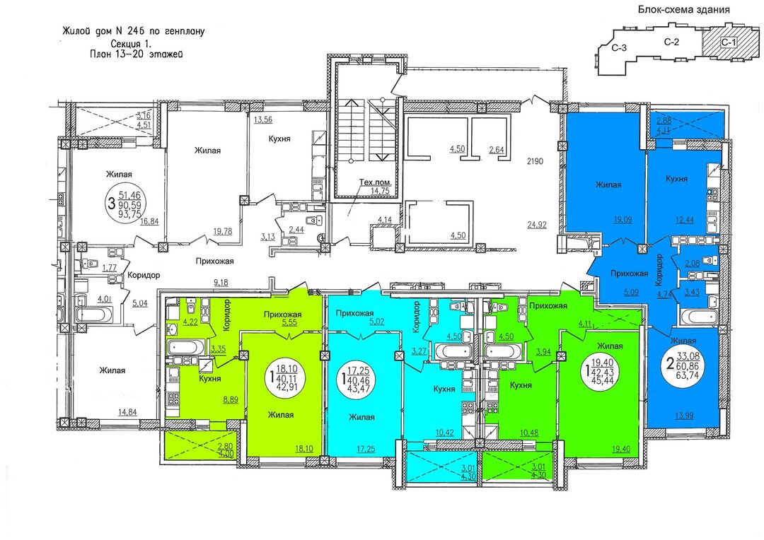
Сейчас для долевки предлагаются 3 однокомнатные квартиры:

− № 60 (13 этаж) — общая площадь 45,44 кв. м,

− № 72 (15 этаж) — 42,91 кв. м,

− № 82 (17 этаж) — 42,91 кв.м.

Как сообщили нам в офисе «Минскстроя», предыдущие дольщики расторгли договор. При этом, стоимость «квадрата» осталась для новых заявителей будет той же, что была в последней декларации. При 100%-й оплате цена метра составит 2900 рублей. Если покупателю понадобится рассрочка, то тогда «квадрат» будет стоить 3090 рублей (60% − первый взнос, рассрочка на 3 месяца).

Отметим, что все представленные квартиры продаются с машиноместами. За каждое нужно будет заплатить еще 23,3 тысячи рублей. Таким образом, стоимость однокомнатной квартиры вместе с местом в паркинге составит сумму около 150 тысяч рублей, или 53 тысяч долларов.

Читать:
Поделиться: