В ЖК «Лазурит» в продажу поступили квартиры всех восьми секций. Самая дорогая квартира — $ 590 тысяч

15.01.2019 4 8647

ЖК «Лазурит» интересен покупателям и своим расположением, и планировками квартир. И, если в октябре на продажу были выставлены объекты в первых четырех секциях домов, то сейчас квартиру можно выбрать абсолютно в любой части комплекса. Тут вам и апартаменты по сниженной стоимости, и пентхаусы площадью 386 кв.м.

ЖК «Лазурит» расположен в Центральном районе Минска на пересечении пр-та Победителей и ул. Нарочанской. Общая площадь занимаемой территории — 5,8 га.

Комплекс представляет собой монолитно-каркасное здание с наружными ограждающими стенами из керамических поризованных блоков с утеплением по системе «вентилируемый фасад».

В состав жилого комплекса входят:

— трехсекционный 15−17−19-этажный жилой дом (в том числе 13−15−17-й жилые этажи) на 279 квартир на проспекте Победителей;

— 37-этажная высотная часть (33 жилых этажа, из них два двухуровневых пентхауса на последних этажах) на 292 квартиры;

— трехсекционный 15−17−19-этажный жилой дом (в том числе 13−15−17-й жилые этажи) на улице Нарочанской на 307 квартир;

— подземная 2-этажная гараж-стоянка.

Согласно проекту, в доме предусмотрена возможность объединения кухни с жилой комнатой в единое пространство. В ряде квартир в зависимости от площади дополнительно предусмотрены гостевые санузлы. Жилые помещения сдаются без чистовой отделки.

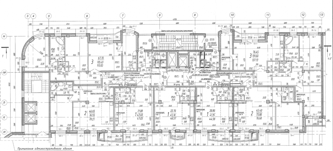
На сайте «Лазурита» можно посмотреть планировки квартир всех 8 секций. Сейчас в продажу поступили объекты в последних 5 секциях (с 4-й по 8-ю).

В 4-й и 5-й секциях на 32−33-м этажах расположены двухэтажные пентхаусы общей площадью 386,14 кв. м (жилая — 280 кв. м). Стоимость квадратного метра здесь составляет Br3281/кв.м, а это значит, что стоимость всей квартиры составит Br1 млн 266 тысяч рублей (или $ 589 тысяч по актуальному курсу Нацбанка).

При этом самая маленькая по площади квартира — 37,15 кв.м. Стоимость 1 квадратного метра в ней — Br3410.

Есть квартиры пониженной стоимости. Они расположены в 1-й секции комплекса. Здесь это двухкомнатные квартиры, цена квадратного метра в которых составляет Br2600 (против Br2729 других двухкомнатных квартир). Это связано с близко расположенной к дому поликлиникой, окна которой находятся всего лишь в 15 метрах от окон этих объектов недвижимости.

Стоимость одного парковочного места составляет Br25.157 ($ 11.700 по актуальному курсу Нацбанка). Как пояснили журналисту Realt.by в отделе продаж, в стоимость парковочного места входит не только цена тех 12 кв. м, которые выделены для стоянки одного автомобиля, но и площадь проездов и технических помещений паркинга.

Также в УКС «Мингорисполкома» уточнили, что из 878 квартир комплекса сейчас задекларированы около 80%: куплено около 250 квартир, остальные 628 квартир выставлены на продажу. В целом «объект строится, дольщики идут, договоры заключаются».

Читать:
Поделиться: