Купить комнату, г. Минск, ул. Пономарева, 4
59 489 р.
6 685 р.≈ 2 360 $ за м²
Комната
Кухня
Этаж
Описание
Кирпичный дом 1936 г.п., кап. ремонт был в 2005 году, сталинка, высота потолков 3,0 м., расположен рядом с сосновым лесом - с одной стороны и парком "Уручье" - с другой.
Идеальное место для комфортной жизни!
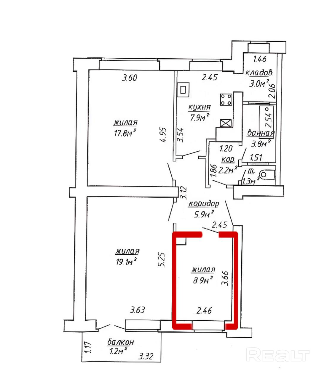
Продаётся 1\5 (одна пятая) доля в праве собственности на квартиру, расположенная по адресу:
г. Минск, ул. Пономарёва, д.4, общ. площадью жилого помещения 69,9 кв.м., в 3-х комнатной квартире.
Право пользования жилой комнатой 8,9 кв.м. (Комната не выделена). Кухня 7,9 кв.м., коридор, ванная, туалет, кладовка - находятся в общем пользовании.
Хорошие, доброжелательные соседи (проживают 2 мужчины). Получен отказ от соседей от права первоочередной покупки.
Развитая инфраструктура района: у дома детский сад, общеобразовательная школа, магазины, остановки общественного транспорта, объекты сервисного обслуживания. В шаговой доступности продовольственный рынок Уручье -3, магазины Евроопт, Санта, физкультурно-оздоровительный комплекс, стадион, бассейн.
Хорошее транспортное сообщение, удобный выезд на Мкад. До станции метро "Уручье" 10 минут.
Торг реальному покупателю!!!
Помогу продать вашу недвижимость для покупки этой.
Звоните и приходите на просмотр!
Параметры объекта
- Количество комнат
3
- Доля в квартире
20%
- Площадь общая
69.9 м²
- Площадь комнаты
8.9 м²
- Площадь кухни
7.9 м²
- Площадь балконов
1.2 м²
- Площадь по СНБ
71.1 м²
- Год постройки
1936
- Год капитального ремонта
2005
- Этаж / этажность
2 / 4
- Число уровней
1
- Тип дома
Кирпичный
- Балкон
Балкон
- Высота потолков
3 м
- Санузел
Раздельный
- Собственность
Частная
- Условия продажи
Чистая продажа
- Номер договора
71/4 от 10.03.2026
Примечание
Местоположение
- Область
- Населенный пункт
- Улица
- Номер дома
4
- Район города
- Микрорайон
- Координаты
53.946, 27.7077
