Продажа административное здание в Советском районе

до 2 007 810 р.

до 700 000 $

2 487 р. 867 $ за м²

Продажа
Следить за ценой
Здание

Тип

807 м²

Площадь

03.02.2026ID 4014870
pdf
Обзор по коммерческой недвижимости
Данные формируются на базе сделок за 2024 год

Описание

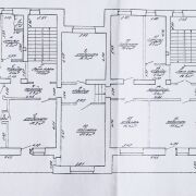
Отдельно стоящее административное кирпичное 2-х этажное здание c двумя отдельными входами S=807м2. Кабинетная разбивка рациональное размещение всех кабинетов относительно общей площади( схема поэтажных планов), оптоволокно во всех кабинетах, имеется серверная, приточно-вытяжная вентиляция, часть кабинетов оборудованы кондиционерами, установлено видеонаблюдение по периметру дома в здание и на коридорах, своя парковка на 12 машин, есть складские помещения и площади для архива, автономная котельная на газу позволяет регулировать коммунальные расходы в зимний период, доступ 24/7 дней в неделю. Во всех кабинетах произведён ремонт, все инженерные сети исправны.

Удобное транспортное сообщение, рядом остановки общественного транспорта, стартовали работы по строительству метро (станция будет в шаговой доступности).

Параметры объекта

  • Тип объекта

    Здание

  • Площадь общая

    807 м²

  • Этажность

    2

  • Год постройки

    2000

  • Материал стен

    Кирпичный

  • Высота потолков

    2.7 м

  • Ремонт

    Нормальный

  • Отопление

    Есть

  • Электроснабжение

    Есть

  • Естественное освещение

    Есть

  • Вода

    Есть

  • Газ

    Есть

  • Санузел

    Есть

  • Парковка

    Есть

  • Принадлежность объекта

    Частная

  • НДС

    НДС нет (0%)

  • Расположение

    В бизнес центре

  • Юридический адрес

    Да

  • Номер договора

    531/1 от 12.06.2025

Оснащение

Кондиционер

Видеонаблюдение

Компьютерная сеть

Интернет

Отдельный вход

Примечание

Продажа административное здание в Советском районе на 1-м переулке Франциска Скорины, 30. Отдельно стоящее административное кирпичное 2-х этажное здание c двумя отдельными входами S=807м2. Кабинетная разбивка рациональное размещение всех кабинетов относительно общей площади

Местоположение