Продаётся эксклюзивная квартира "Сталинка" площадью 61,6 м2 в кирпичном доме.

548 677 р.

187 000 $

8 723 р. 2 973 $ за м²

Чистая продажа
Следить за ценой
62.9 м²

Общая

35.3 м²

Жилая

12.5 м²

Кухня

4 из 4

Этаж

час назадID 3880200
pdf
Обзор по новостройкам Минска и пригорода
Цены и наличие квартир, условия покупки и оплаты

Описание

Продаётся эксклюзивная квартира "Сталинка" площадью 61,6 м2 в кирпичном доме в историческом центре Минска, ул.Красноармейская, дом 8; возле Президент- Отель; уникальное расположение дома; 4/4 этаж; приглашаем на просмотр! Торг

Индивидуальные проекты 4-х этажных домов 1941-1957 г

Дом "Красноармейская 8" - расположен в тихом центре столицы!

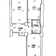
 Высота потолков – 2,83 метра! Отличная планировка: жилая1 – 18,3 м2; жилая2 – 17,0 м2; кухня – 12,5 м2; коридор -8,5 м2; санузел совмещен 4,7- м2! Окна выходят на две стороны, французские блаконы.

Рядом вся инфраструктура, необходимая для комфортного проживания и отдыха, множество кафе и ресторанов, магазины, школа, гимназия, детский сад, поликлиника, аптека; отличное транспортное сообщение, станция метро Октябрьская, Первомайская, Площадь победы!

Эта квартира идеально подойдет как для тех, кто хочет жить в центре и не слышать городского шума!

 Квартира отлично подойдёт как для проживания, так и для аренды — локация востребована круглый год.

Такой шанс — редкость. Пространство с душой, в центре города, с гибкими возможностями.

Показываем квартиру в любое удобное время.

Звоните, чтобы договориться о просмотре — такие предложения долго не задерживаются!

Лицензия: 02240/446 МЮ РБ, 11.07.2022

Параметры объекта

  • Количество комнат

    2

  • Раздельных комнат

    2

  • Площадь общая

    62.9 м²

  • Площадь жилая

    35.3 м²

  • Площадь кухни

    12.5 м²

  • Год постройки

    1955

  • Этаж / этажность

    4 / 4

  • Тип дома

    Кирпичный

  • Планировка

    Сталинка

  • Балкон

    Балкон

  • Ремонт

    Хороший

  • Высота потолков

    2.7 м

  • Санузел

    Совмещенный

  • Собственность

    Частная

  • Условия продажи

    Чистая продажа

  • Номер договора

    664/1 от 03.09.2025

Примечание

Продаётся эксклюзивная квартира "Сталинка" площадью 61,6 м2 в кирпичном доме в историческом центре Минска, ул.Красноармейская, дом 8; возле Президент- Отель; уникальное расположение дома; 4/4 этаж; приглашаем на просмотр! Торг

Местоположение