Снять склад, аг. Большевик, ул. Промышленная (Минский р-н, Минская область)

от 20 р./м²

от 7 $/м²
Аренда
Следить за ценой
Склад

Тип

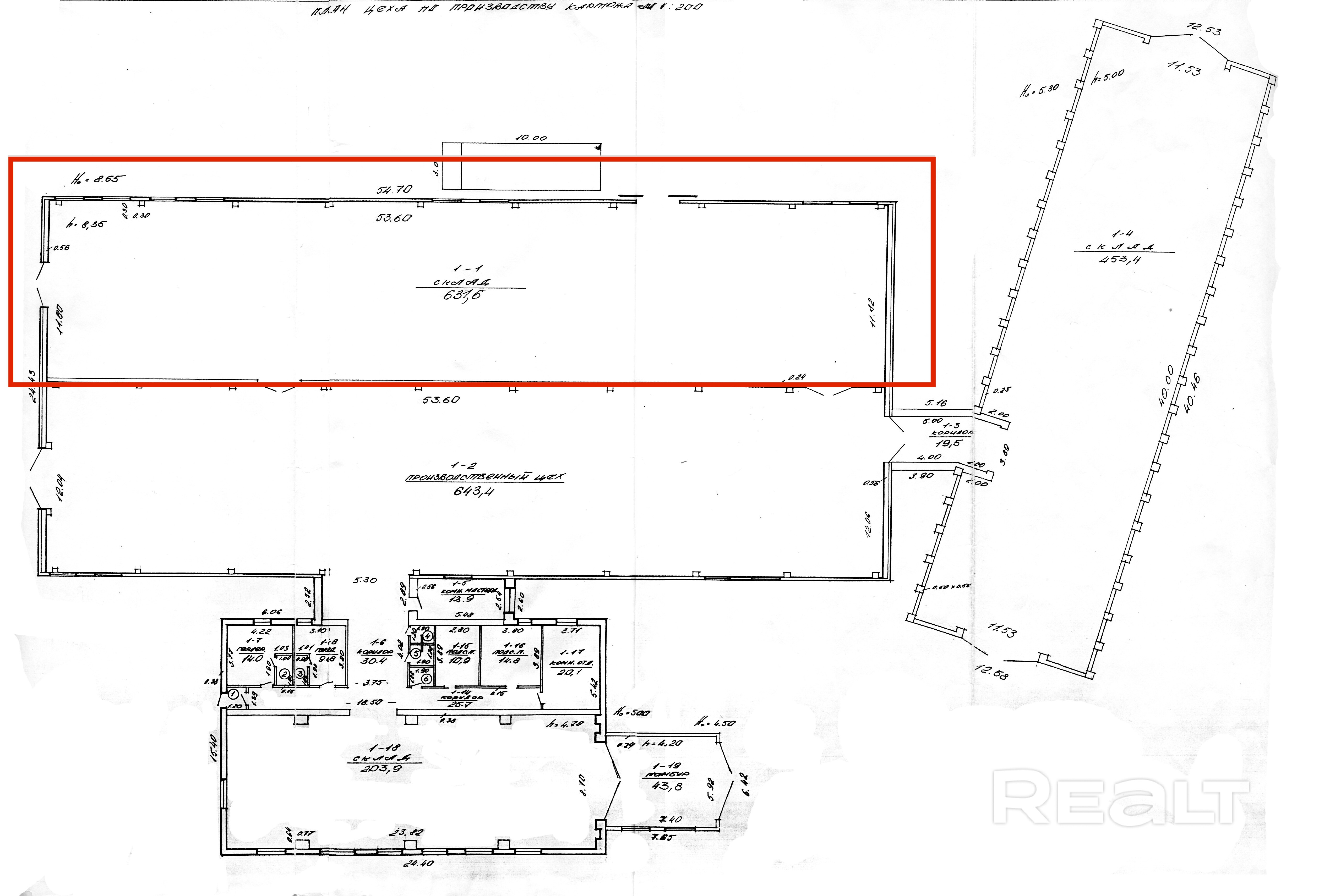
475 м²

Площадь

1 из 1

Этаж

03.12.2025ID 3261418
pdf
Обзор по коммерческой недвижимости
Данные формируются на базе сделок за 2024 год

Параметры объекта

  • Тип объекта

    Склад

  • Площадь общая

    475 м²

  • Этаж / этажность

    1 / 1

  • Год постройки

    2000

  • Раздельных помещений

    1

  • Отопление

    Есть

  • Электроснабжение

    Есть

  • Естественное освещение

    Есть

  • Вода

    Есть

  • Газ

    Есть

  • Санузел

    Есть

  • Парковка

    Есть

  • Принадлежность объекта

    Частная

  • НДС

    НДС включен

  • Юридический адрес

    Да

Оснащение

Охрана

Видеонаблюдение

Интернет

Отдельный вход

Примечание

Сдается отдельно стоящий теплый, отапливаемый склад площадью 475 м2. Есть отдельные комнаты для выписки документов, раздевалки, душевые. Санузел. Своя котельная, электро подстанция. WiFi. Огороженная территория, видеонабл-е. 4 км МКАД. Цена с НДС. Коммунальные платежи отдельно.

Местоположение