Снять торговое помещение, г. Минск, просп. Дзержинского, 22

64 р./м²

22 $/м²
Аренда
Следить за ценой
Торговое помещение

Тип

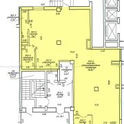
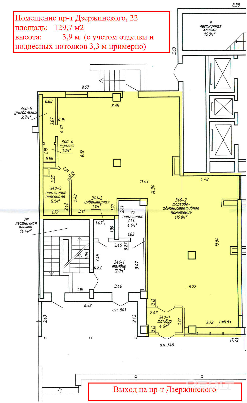
129.70 м²

Площадь

1 из 21

Этаж

22.11.2025ID 3933506
pdf
Обзор по коммерческой недвижимости
Данные формируются на базе сделок за 2024 год

Параметры объекта

  • Тип объекта

    Торговое помещение

  • Площадь общая

    129.70 м²

  • Этаж / этажность

    1 / 21

  • Год постройки

    2016

  • Материал стен

    Блочный

  • Высота потолков

    3.5 м

  • Ремонт

    Хороший

  • Отопление

    Есть

  • Электроснабжение

    220В

  • Электрическая мощность

    14 кВт

  • Естественное освещение

    Есть

  • Вода

    Есть

  • Санузел

    Есть

  • Оборудование

    Есть

  • Количество телефонов

    2 телефона

  • Принадлежность объекта

    Частная

  • НДС

    НДС нет (0%)

  • Расположение

    В жилом доме

Оснащение

Кондиционер

Видеонаблюдение

Компьютерная сеть

Отдельный вход

Интернет

Арендодатель

Андрей

Контактное лицо

Примечание

Светлое торговое помещение, готовое к эксплуатации, с кондиционерами, роллетами, Internet и разводкой сети

Местоположение