Помещения на 1-м этаже с отдельным входом, метро «Каменная горка»

155 р./м²

53 $/м²
Аренда
Следить за ценой
Магазин

Тип

39 - 150 м²

Площадь

1 из 2

Этаж

10.12.2024ID 3561678
pdf
Обзор по коммерческой недвижимости
Данные формируются на базе сделок за 2024 год

Описание

Предлагаем аренду помещений возле метро «Каменная горка»!

 

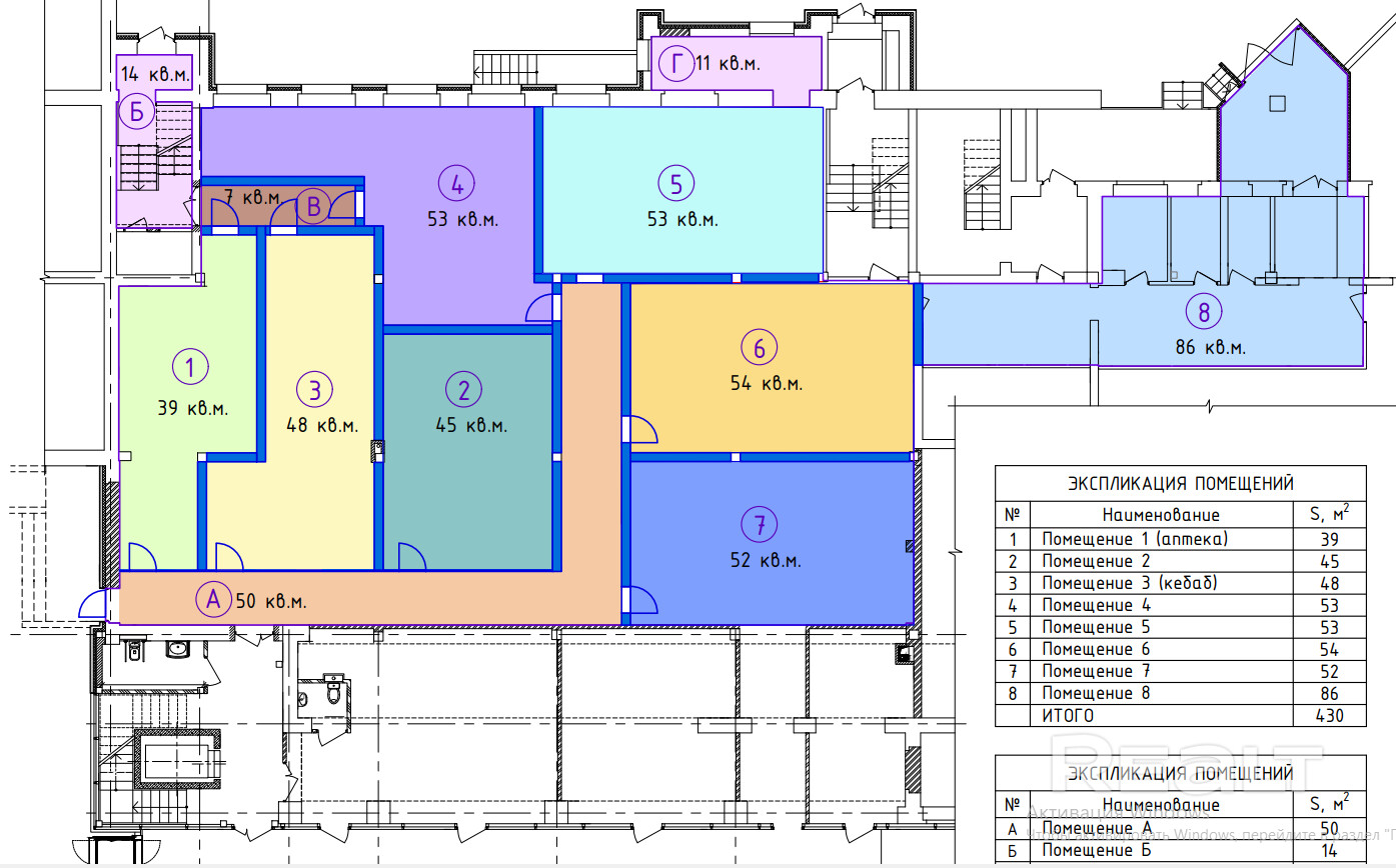
Первый этаж небольшого торгового центра общей площадью - 518 м2 располагается по адресу, ул. Притыцкого 146.

Назначение объекта  – Здание специализированное розничной торговли.

Удобная локация с большим пешеходным и автомобильным трафиком.

Рядом со зданием парковка, остановки общественного транспорта и метро «Каменная горка».

Рядом множество коммерческих помещений формата Street Retail: магазины, аптеки, кофейни, рестораны и т.д.

 

Первый этаж будет разделен не небольшие павильоны: 1) 39 м2; 2) 45 м2; 3) 48 м2; 4) 53 м2; 5) 53 м2; 6) 54 м2; 7) 52 м2; 8) 86 м2.

 

·  Метро «Каменная горка»;

·  Приточно-вытяжная вентиляция;

·  Доступ в помещения 24/7;

·  Подъездные пути;

·  Парковка возле здания.

 

Проведены коммуникации: электроснабжение, отопление, пожарная сигнализация, приточно-вытяжная вентиляция, скоростной интернет.

 

Арендатор не платит комиссию агентству!
Готовы рассмотреть Ваши предложения.
Звоните!

Параметры объекта

  • Тип объекта

    Магазин

  • Площадь общая

    39 - 150 м²

  • Этаж / этажность

    1 / 2

  • Раздельных помещений

    1

  • Высота потолков

    2.7 м

  • Отопление

    Есть

  • Электроснабжение

    Есть

  • Вода

    Есть

  • Санузел

    Есть

  • Принадлежность объекта

    Частная

  • НДС

    НДС нет (0%)

  • Юридический адрес

    Да

  • Номер договора

    174/2а от 26.05.2024

Примечание

Первый этаж небольшого торгового центра общей площадью - 518 м² располагается по адресу, ул. Притыцкого 146.

Местоположение