Снять торговое помещение, г. Минск, ул. Кульман, 1

от 17 933 р.

от 6 043 $

от 48 р. от 16 $ за м²

Аренда
Следить за ценой
Торговое помещение

Тип

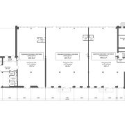
373.60 м²

Площадь

1 из 4

Этаж

03.11.2025ID 3526613
pdf
Обзор по коммерческой недвижимости
Данные формируются на базе сделок за 2024 год

Описание

Ищете идеальное место для вашего бизнеса? У нас есть то, что вам нужно!

Сдаётся в аренду коммерческое помещение в БЦ  "IT max".

Корпуса бизнес-центра  "IT max" расположены по части периметра одного из крупнейших проектов столицы – многофункционального комплекса «Атмосфера», расположенного на территории бывшего завода МПОВТ возле площади и станции метро Якуба Коласа.

Комфортабельные офисы в самом центре – что может быть лучше? Но еще лучше то, что упомянутые бизнес-центры являются частью «Атмосферы» с крупнейшим в стране фудмоллом, зонами отдыха, крупнейшим детским развлекательным центром. Проект пошагово запустится в 2025 году. Таким образом, арендуя офисы в  "IT max", вы становитесь частью впечатляющего многофункционального комплекса, аналогов которому в столице Беларуси нет.

Параметры помещения:

• Площадь: 373,6 м2

• Высота потолков: 3,2 м

• Возможность перепрофилирования под ваш бизнес (медицина, магазин, офис, шоурум, услуги, общепит и т.д.)

 

Преимущества:

• Гибкие условия аренды

• Развитая инфраструктура: рядом остановки общественного транспорта. Для удобства, арендаторы и посетители смогут оставить свои авто на прилегающей парковке.

• Возможность адаптации пространства под ваши нужды.

Не упустите шанс!

Помещение идеально подходит как для стартапов, так и для уже действующих компаний, желающих расширить свои горизонты.

Ваш бизнес заслуживает роста — арендуйте пространство, которое поможет ему расти!

Параметры объекта

  • Тип объекта

    Торговое помещение

  • Площадь общая

    373.60 м²

  • Этаж / этажность

    1 / 4

  • Материал стен

    Кирпичный

  • Высота потолков

    3 м

  • Ремонт

    Без отделки

  • Отопление

    Есть

  • Электроснабжение

    Есть

  • Естественное освещение

    Есть

  • Вода

    Есть

  • Санузел

    Есть

  • НДС

    НДС включен

  • Расположение

    В бизнес центре

  • Юридический адрес

    Да

Оснащение

Оживленное место

Арендодатель

Менеджер

Контактное лицо

Примечание

Сдаются в аренду коммерческие помещения в БЦ "IT max" с возможностью перепрофилирования под ваш бизнес (медицина, магазин, офис, шоурум, услуги, общепит и т.д.)

Местоположение