Снять ресторан, г. Минск, ул. Кальварийская, 44

4 140 р.

1 430 $

20 р. 7 $ за м²

Аренда
Следить за ценой
Ресторан

Тип

180 м²

Площадь

0 из 1

Этаж

4 часа назадID 3915215
pdf
Обзор по коммерческой недвижимости
Данные формируются на базе сделок за 2024 год

Описание

Сдаются в аренду торговые помещения

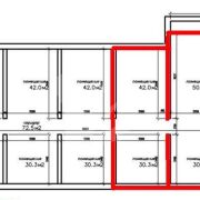
По адресу Кальварийская 44 сдаются в аренду многофункциональные помещения.
Площадью: 42м, 50,8м, 30,3м, 30,3м, 30,3м с арендной ставкой за метр 23руб.бел. 

По адресу Кальварийская 44 сдаются в аренду многофункциональные помещения.

Площадью: 42м, 50,8м, 30,3м, 30,3м, 30,3м с арендной ставкой за метр 23 бел.руб.


-квт: 50 
-В: 220-380
-Доступ на объект 24/7
-Оживлённое место 
-Есть санузел

Больше объявлений тут: www.instagram.com/garant.arenda

Напишите нам в удобный для Вас мессенджер:

Viber | Telegram | WhatsApp

Ответим на Ваши вопросы, предоставим всю необходимую дополнительную информацию.

ООО «Артель Недвижимость»

УНП 193820882

Лицензия Министерства Юстиции №48250000081913 06.03.2025 г.

Договор №176/2а от 09.10.2025

Параметры объекта

  • Тип объекта

    Ресторан

  • Площадь общая

    180 м²

  • Этаж / этажность

    0 / 1

  • Год постройки

    1969

  • Класс

    B

  • Раздельных помещений

    5

  • Материал стен

    Кирпичный

  • Высота потолков

    2.7 м

  • Ремонт

    Хороший

  • Отопление

    Есть

  • Электроснабжение

    380В

  • Электрическая мощность

    50 кВт

  • Вода

    Есть

  • Санузел

    Есть

  • Принадлежность объекта

    Частная

  • НДС

    НДС нет (0%)

  • Расположение

    В жилом доме

  • Юридический адрес

    Да

  • Номер договора

    176/2а от 08.10.2025

Оснащение

Кондиционер

Оживленное место

Компьютерная сеть

Интернет

Примечание

Сдаются в аренду торговые помещения По адресу Кальварийская 44 сдаются в аренду многофункциональные помещения.

Местоположение