Капитальное строение, склад, производство

21 р./м²

7 $/м²
Аренда
Следить за ценой
Производство

Тип

2881.70 м²

Площадь

05.08.2025ID 3816486
pdf
Обзор по коммерческой недвижимости
Данные формируются на базе сделок за 2024 год

Описание

Капитальное строение, склад, производство

 

г. Минск, ул. Корженевского, 18Б

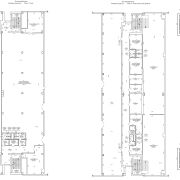
Площади: 1706,5 м2 – 1 этаж

                   802 м2 - антресоль 1 этажа

                    319,2 м2 - 3 этаж

Арендная ставка: 6 €/м2 без  НДС

Арендатор не оплачивает услуги риэлтерской организации!

Капитальное строение, склад, производство

Комплекс расположен на земельном участке площадью 1,8573 га.

Территориальное расположение с удобной внешней инфраструктурой вблизи МКАД и транспортной развязки.

 

Ваш агент – Андрей Смолка


Больше предложений на САЙТЕ Silvan7800.by

Присоединяйтесь к нам в соцсетях:
Instagram
Facebook
VK
OK
YouTube



ООО «Сильван-Инвест», УНП 192927433, лицензия №02240/383, Министерство юстиции РБ, 24.09.2019.

Параметры объекта

  • Тип объекта

    Производство

  • Площадь участка

    185.73 соток

  • Площадь общая

    2881.70 м²

  • Этажность

    3

  • Электроснабжение

    Есть

  • Вода

    Есть

  • Санузел

    Есть

  • НДС

    НДС нет (0%)

  • Номер договора

    64/3а от 09.07.2025

Примечание

г. Минск, ул. Корженевского, 18Б Площади: 1706.5 м2. – 1 этаж 802 м2 - антресоль 1 этажа 319,2 м2 - 3 этаж Арендатор не оплачивает услуги риэлтерской организации! Комплекс расположен на земельном участке площадью 1,8573 га. Территориальное расположение с удобной внешней инфраструктурой вблизи МКАД и транспортной развязки.

Местоположение