Аренда склад-производство 3000- 5000 кВм Радошковичи 33 км МКАД1

6 р./м²

2 $/м²
Аренда
Следить за ценой
Производство

Тип

3000 - 5000 м²

Площадь

1 из 1

Этаж

26.11.2025ID 3623139
pdf
Обзор по коммерческой недвижимости
Данные формируются на базе сделок за 2024 год

Описание

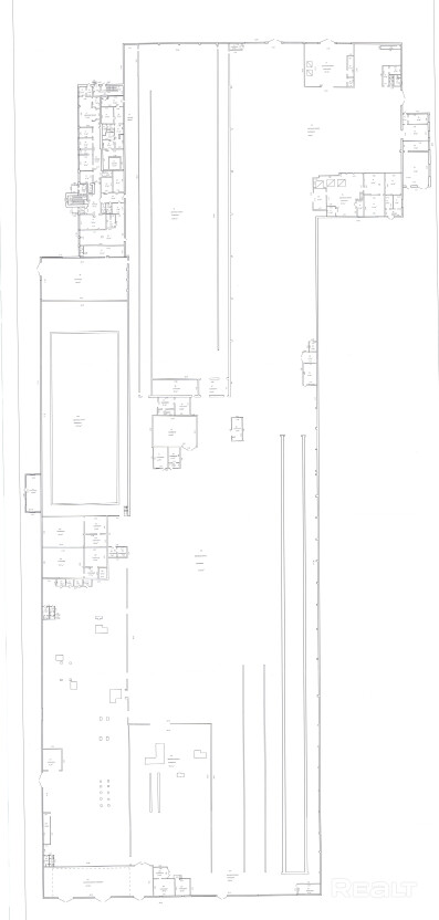
Сдаётся склад 3000-5000 кВм. Молодечненское направление10 км МКАД2.

33 км от МКАД1 по скоростной дороге. Вблизи посёлка Радошковичи.

Параметры склада:

  • высота потолков 10 м до ферм;
  • не отапливаемый;
  • скважина;
  • электричество;
  • Электрическая мощность 300 кВт.

Полы: цемент

множество ворот по периметру для заезда грузового транспорта.

Склад можно делить использовать под производство, ремонт хранение техники:

1500, 3000, 5000, 8 000, 10 000 м2.

На территории есть отапливаемая офисная часть кабинетного типа с санузлом, душем и  канализацией.

Арендатор не оплачивает услуги агентства!

Параметры объекта

  • Тип объекта

    Производство

  • Площадь общая

    3000 - 5000 м²

  • Этаж / этажность

    1 / 1

  • Год постройки

    1984

  • Раздельных помещений

    1 - 2

  • Ремонт

    Строительная отделка

  • Отопление

    Есть

  • Электроснабжение

    Есть

  • Естественное освещение

    Есть

  • Вода

    Есть

  • Санузел

    Есть

  • Принадлежность объекта

    Частная

  • НДС

    НДС включен

  • Юридический адрес

    Да

  • Номер договора

    2/2а от 08.01.2025

Примечание

Аренда Склад- производство 3000- 5000 кВм. Радошковичи 10 км МКАД2. 33 км от МКАД1 по скоростной дороге

Местоположение