Сдается в аренду многофункциональное современное здание от 30кв.м.

21 р./м²

7 $/м²
Продажа
Следить за ценой
Офис

Тип

30 - 1365 м²

Площадь

1 из 3

Этаж

07.10.2025ID 3476257
pdf
Обзор по коммерческой недвижимости
Данные формируются на базе сделок за 2024 год

Описание

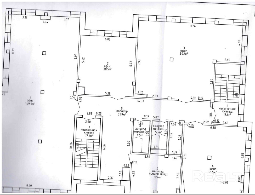
Сдается в аренду многофункциональное здание( площадь от 30 до 1365 кв.м.) в аг. Колодищи, ул. Парковая, 19.

 

Возможность размещения производительного цеха + склада, торговых помещений, административные этажи можно использовать под офис, как кабинетная система так и офис опен спейс.

 

Новое современное здание 2023 года!

В 10 км. от Минска, Московское направление!

 

Есть возможность сдачи в аренду по этажам и комнатам!

1-й этаж  441 м2;

2-й этаж 453 м2;

3-й этаж 453 м2.

В здании имеется три отдельных входа  .

 

Здание расположено на земельном участке площадью 0.42 Га, отдельный въезд на территорию, большая собственная парковка.

 

Коммуникации:

 

  • собственная котельная ,с двумя каскадными котлами бош ;
  • система вентиляции с рекуперацией , на первом этаже дополнительно принудительная вентиляция;
  • отдельная трансформаторная станция 110кВа;
  • вода , канализация центральная .

 

Есть возможность изменить назначение помещений под пожелания покупателя .

 

Рядом размещена ручная автомойка на 5 машиномест .

 

Здание без отделки, есть возможность реализовать любые идеи.

 

Звоните! Согласуем удобное для Вас время показа!

 

Арендатор не оплачивает услуги агентства!

Параметры объекта

  • Тип объекта

    Офис

  • Площадь общая

    30 - 1365 м²

  • Этаж / этажность

    1 / 3

  • Год постройки

    2023

  • Раздельных помещений

    1 - 10

  • Материал стен

    Кирпичный

  • Ремонт

    Без отделки

  • Отопление

    Есть

  • Электроснабжение

    Есть

  • Естественное освещение

    Есть

  • Вода

    Есть

  • Санузел

    Есть

  • Принадлежность объекта

    Частная

  • НДС

    НДС нет (0%)

  • Юридический адрес

    Да

  • Номер договора

    335/2а от 01.10.2024

Примечание

Сдается в аренду многофункциональное здание( площадь от 30 до 1365 кв.м.) в аг. Колодищи, ул. Парковая, 19.

Местоположение