Бетон, стеклоблоки и серый цвет. Смотрите, какую брутальную студию продают в Минске

09.04.2025 3192

В ЖК Vogue, что построен у парка Челюскинцев, продается квартира на последнем этаже многоэтажки. В студии сделали хорошую планировку и классный ремонт, где удобно расположились все необходимые зоны. Показываем фишки интерьера, а также пишем про стоимость квартиры.

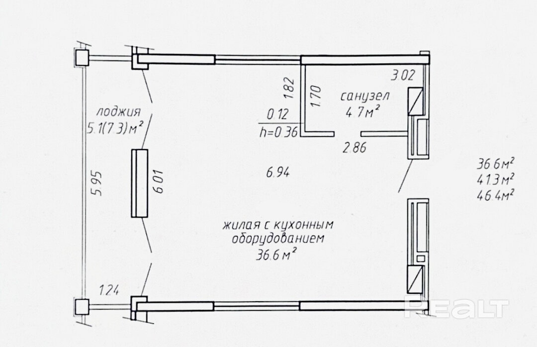
Дом на Макаенка, 12Д был построен в 8 этажей в 2021 году. На последнем продается студия в 46,4 м². Показываем, какой ремонт там сделали владельцы.

Квартира изначально была со свободной планировкой. Интерьер получился брутальным. Чтобы увеличь жилую площадь, кухню разместили с одной стороны коридора. Здесь имеется гарнитур, установлена бытовая техника.

Спальню никак не изолировали. Рядом получилось оборудовать гардеробную. Подсветка добавляет в квартиру теплоты.

Другую часть комнаты занимает зона отдыха с диваном, креслом и телевизором. Мягкая мебель выполнена в одном стиле.

Вместо лоджии тут открытое пространство с окнами в пол. Они, кстати, заменены. Установлены небьющиеся двухкамерные стеклопакеты. На небольшом подиуме стоит кофейный столик, а также сделано рабочее место.

Высота потолков — 2,75 м. На полу уложены плитка и ламинат. Стены окрашены, потолки — бетон.

Часть совмещенного санузла отделена стеклоблоками. Такое решение добавило в эту часть квартиры света.

Рядом с домом находятся парк, магазин, медцентр и метро «Московская». За 15 минут можно дойти до ТРЦ Dana Mall.

Студию продают за 111 тысяч долларов. Квадратный метр — 2 392 доллара.

Кстати, эту квартиру, как и остальные квартиры на Realt, можно купить в лизинг. Получить индивидуальную консультацию от специалистов можно вот здесь.

Найти недорогие квартиры в новых жилых комплексах поможет наш обзор по новостройкам Минска. Этот продукт подготовлен аналитиками Realt и точно пригодится тем, кто сейчас изучает рынок новостроек столицы.

Читайте также:

«Низкий доллар не помог». Эксперты рассказали, что происходит на рынке недвижимости

Остались ли в Минске бюджетные двушки? Показываем варианты до 60 тысяч долларов

Тут еще остались квартиры от 72 тысяч долларов. В «Уютном» возводят второй дом

Читать:
Поделиться: