Показываем самый дорогой дом, который купили в июне 2023 года. Он находится в закрытом поселке

18.07.2023 31632

Самый дорогой дом, проданный в июне 2023 года, был построен в 2012 году в элитном поселке клубного типа «Логожеск», который находится в 27 км от МКАД. Его купили за 382 тысячи долларов. Показываем, как выглядит этот дом.

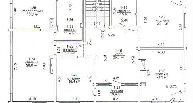
Этот коттедж был построен из клееного бруса. Первый этаж выполнен из бетона, облицованного натуральным камнем. В цокольном этаже находится гараж. Общая площадь здания — 478,9 кв. м., участка — 15 соток.

Территория коттеджного поселка огорожена и охраняется, ведется видеонаблюдение. Со всех сторон комплекс окружен лесным массивом, вблизи расположен горнолыжно-спортивный комплекс «Логойск».

В доме сделан современный ремонт, он полностью меблирован, установлена импортная техника. Полы выполнены из дубовой, кедровой паркетной доски, двери — массив из кедра. Также есть камин, финская сауна, отапливаемый гараж, три санузла.

По данным НКА коттедж был продан за 382 тысячи долларов.

Читайте также: «Показываем самую дорогую квартиру, которую купили в июне в Минске. Там только балкон — как комната!»

Читать:
Поделиться: