Часть «Дримлэнда» опять продается. На оставшейся, возможно, что-то построят
21.01.2022 5012
На площадке Realt появилось объявление о продаже офисно-торгового центра «Дримлэнд», что находится на улице Орловской в Минске. Напомним, что бывший владелец аквапарка Юрий Аверьянов, ставший фигурантом уголовного дела, несколько лет назад эмигрировал, а развлекательный комплекс выставили на аукцион. В 2020 году сообщалось, что комплекс приобрели собственники группы компаний «А-100». Мы обратились в агентство недвижимости «Авеню», занимающееся продажей объекта, и уточнили все подробности.
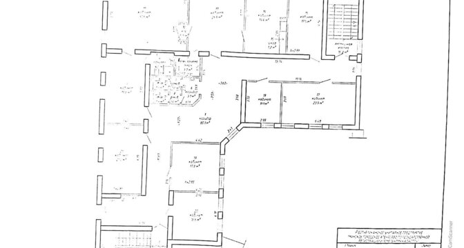
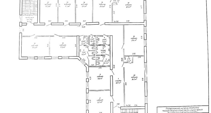
Сразу уточним, что речь идет исключительно о продаже офисного здания. Это — бывший вход в аквапарк «Дримлэнд». Сейчас постройка позиционируется как многофункциональный комплекс коммерческой недвижимости. Новые собственники произвели ремонт фасадов здания и полностью заменили коммуникации.
Площадь выставленного на продажу объекта − 2240 квадратных метров. Здание состоит из трех магазинов с отдельными входами площадью по 90 «квадратов» каждый, двух кафе с отдельными входами площадью по 90 и 260 «квадратов», офисных кабинетов площадью от 9 до 58 «квадратов», объединенных в четыре практически независимых друг от друга блока.
Отдельно нужно отметить удачную локацию «Дримлэнда»: рядом − Комсомольское озеро, несколько парковых зон, выставочный центр «Белэкспо», Дом Гребли, Дом футбола, футбольный клуб «Минск», «Мир фитнеса», «Фалькон-клуб» и отель Marriott.
Что касается аквапарка и парковой зоны развлекательного комплекса, то по информации представителей агентства недвижимости, в будущем ее собираются застроить. Как рассказал другой источник на рынке коммерческой недвижимости, здесь, скорее всего планируется создание полноценного развлекательного комплекса.
А вот что рассказал нам соучредитель группы компаний «Авеню» Богдан Паремский:
− Предполагаемая застройка на территории бывшего аквапарка добавит значимости этому объекту. Недавно была проведена реновация входной группы в парк развлечений «Dreamland» и теперь в многофункциональном комплексе могут располагаться различные арендаторы: сфера услуг, общепит, торговые объекты, частные школы и сады, медицинские центры и другие.
Учитывая, что объект, который сейчас принадлежит инвестиционной компании, располагается на пересечении основных транспортных потоков столицы — улицы Орловской и проспекта Победителей, само здание и рекламные вывески на нем будут привлекать внимание большого количества людей, проезжающих мимо. Кстати, на территории комплекса находится большая наземная парковка, что является большой редкостью в центре города.
Богдан Паремский считает, что после застройки близлежащей территории объект значительно увеличит свою коммерческую ценность. На данный момент, здание уже на 50% заполнено арендаторами.
Сейчас офисно-торговый центр выставлен на продажу за 3,3 миллиона долларов. Помимо продажи, группа компаний «Авеню» осуществляет и поиск арендаторов для данного объекта недвижимости.
Напомним, парк развлечений «Дримленд», располагающийся недалеко от Верховного суда и Дворца независимости в Минске впервые был выставлен на продажу в рамках дела о банкротстве компании «Ростэм» бизнесмена Юрия Аверьянова. В 2016 году у бизнесмена разгорелась «война» с кредиторами за свои активы. Были возбуждены уголовные дела, а сам бизнесмен эмигрировал в Германию.
В 2020 году выкупить объект решила компания «ТрастХоуп», принадлежавшая тогда собственникам группы компаний «А-100» − Александру Центеру и Надежде Матвеенок. «ТрастХоуп» заключила договор купли-продажи 100% доли в ООО «Парк развлечений Дримленд» за 10,2 млн рублей. Полный расчет новые владельцы должны были произвести до мая 2022 года.
Следите за нами на Яндекс. Дзен
Читайте также:
В центре Минска начали строить дом бизнес-класса. Цена квартир — 3400 долларов за «квадрат»