«Квадрат» от 966 долларов. Госзастройщик выставил на аукцион готовые двушки в новостройке в Минске

14.01.2022 16508

В прошлом году на улице Лобанка, 64 что в микрорайоне Красный Бор-2, был сдан в эксплуатацию 16-ти этажный дом. Возвел каркасную новостройку государственный Завод эффективных промышленных конструкций. Часть квартир в высотке еще на старте продаж прибрели дольщики. Оставшееся жилье застройщик продолжает реализовывать через аукцион (последние прошли в октябре, ноябре и начале января). В конце января на торги выставят еще 4 квартиры в новостройке. Информация об этом появилась в газете «Минский курьер».

Всего в 16-этажном доме по улице Лобанка − 143 квартиры. На второй аукцион 2022 года попали только двухкомнатные квартиры.

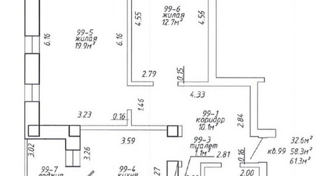
Всем желающим предлагаются квартиры под номерами 3, 5, 53 и 99:

двухкомнатная квартира площадью 57,2 кв. м. Цена − 141 тысяча рублей ($ 55 тысяч);

двухкомнатная квартира площадью 57,6 кв. м. Цена − 142 тысячи рублей ($ 55,5 тысяч);

двухкомнатная квартира площадью 58,1 кв. м. Цена − 155 тысяч рублей ($ 60,5 тысяч);

двухкомнатная квартира площадью 58,3 кв. м. Цена − 155 тысяч рублей ($ 60,5 тысяч).

Получается, что «квадрат» в готовых квартирах без отделки составляет 2473−2670 рублей, или 966−1043 доллара.

Обратим внимание, что во время аукциона стоимость может увеличиться. Если иные заявители будут отсутствовать, то квартира достанется единственному участнику по начальной стоимости +5%.

Аукцион, организованный Институтом недвижимости и оценки, пройдет 27 января (заявки принимаются до 25 января).

Читать:
Поделиться: