Секреты дизайнеров. Ремонт в «однушке» за $ 5 тыс. с полноценным спальным местом и гостевой зоной

20.10.2016 12 7288

Карина Комиссарчик, Карина Комиссарчик

Если погода вас совсем не радует, то посмотрите, что предлагает дизайнер студии ADIN Алена Лихторович сделать с однокомнатной квартирой за $ 5 тыс., и ваше настроение значительно улучшится! Дизайнеру удалось не только вместить все необходимые зоны в небольшую квартиру, но и сделать красивый ремонт за небольшие деньги.

Итак, сегодня речь пойдет о небольшой однокомнатной квартире площадью 45,9 кв. м, которую необходимо оформить для молодой пары. Бюджет для ремонта ограничен, поэтому для отделки использовались недорогие материалы. Заказчики попросили дизайнера создать воздушный, легкий интерьер. Также они указали, что хотят полноценное спальное место. Варианты с раскладывающимся диваном или кровати-трансформеры не подходили. Плюс нужно было найти место для дивана для гостей, а также выделить значительное количество пространства для мест хранения. Также хозяйка квартиры любит вышивать, поэтому нужно было выделить место для рукоделия. Хозяин иногда работал дома, поэтому ему нужна была рабочая зона.

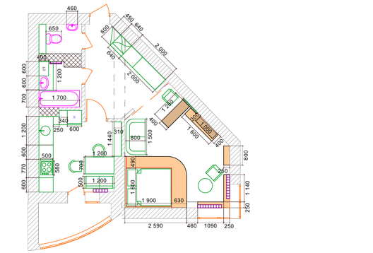
— Па плану видно, что в квартире коридор и жилая комната неправильной формы. Коридор здесь занимает 9 кв. м, а комната — 18 кв.м. Так как перед нами стояла задача сэкономить и не выходить за рамки бюджета, глобального демонтажа мы не делали. Мы лишь немного сузили, но приподняли дверной проем в комнату, после вы увидите, зачем. Так как дом каркасно-монолитный, то у нас есть несущие конструкции. В этой квартире — балки на потолке, которые нужно было скрыть.

Далее, из черновых работ нам необходимо было выровнять стены, так как владельцы решили их покрасить. Да, это решение не из дешевых, но если выбирать не самую дорогую квартиру, то и оно будет вполне доступным. Мы выбрали моющуюся краску. Стяжку пола мы не трогали, сантехнику тоже. Но вот электрику пришлось заменить.

По цветовой гамме заказчики высказали предпочтение светлым тонам, но с яркими акцентами. Прихожую дизайнер предложила оформить в фисташковый цвет в стиле прованс, а также использовать трафаретный рисунок. На полу установлена плитка, потолок сделан натяжным с элементами гипсокартона.

Балки, которые сильно опущены вниз, Алена задекорировала зеркалом, чтобы «растворить» их в пространстве. Так как прихожая большая, то здесь было выделено много места для шкафа-купе с зеркальным фасадом. Здесь запланировано хранение как обычной одежды, так и верхней. Плюс в нем отведены полки для обуви, а также бытовых громоздких предметов.

— Переходим к нашей главной комнате, где нам необходимо было разместить спальное место, рабочую зону, место для рукоделия, зону TV и гостевой диван. Мы решили заказать кровать с подиумом, внутри которого будет зона для хранения постельного белья. Чтобы спальное место было комфортными, мы решили прибегнуть к мягкому изголовью. Вокруг кровати установлены деревянные полки, где также можно хранить вещи, использовать их как стол или, положив на поверхность подушки, как скамью для гостей. Спальное место мы визуально отделили интересными бусами.

Далее, зона для рукоделия. Нам повезло, так как окно в квартире было угловым и длиннее, чем стандартное. Здесь мы и решили отвести место для хобби хозяйки. Мы оформили батареи деревянными радиаторами, на подоконник положили мягкие подушки и установили отдельный свет — место у окошка для вышивания готово!

Зона TV в квартире трансформируется в рабочую зону. Под телевизором уставлен выдвижной стол, который можно использовать по мере необходимости, а после — задвигать его на место, чтобы разгрузить помещение. Напротив зоны TV нашлось место для дивана длинной 1,2 м, который раскладывается вперед.

Так как хозяйка увлекается танцами, то на одной из стен в комнате дизайнер предложила сделать рисунок танцующей девушки. На полу здесь установлен ламинат, стены покрашены. Потолок гипсокартонный.

— Кухня в этой квартире вполне просторная — 9 кв.м. Нашей задачей здесь было организовать место для готовки и обеденную зону. Мы использовали Г-образную рабочую зону и невысокие верхние полочки. Обеденная зона с диваном, чтобы можно было принимать гостей. На кухне есть ниша, которую мы также использовали, как зону хранения.

На стену у рабочей зоны уложена плитка. Возле рабочей зоны стены покрашены, а возле обеденной — поклеены обои. Цветовая гамма на кухне немного перекликается с коридором, плитка в этих зонах одинаковая. К кухне примыкает лоджия, но в целях экономии дизайнер с ней не работала.

Санузлом Алена также не занималась, заказчики его оформляли самостоятельно. На выравнивание стен под покраску, разведение электрики и увеличение дверного проема в комнату было потрачено около $ 2 тыс. Далее, за чистовые материалы и работы владельцы заплатили около $ 3 тыс. В общем, на такой ремонт понадобилось $ 5 тыс. без учета мебели. Кстати, стоит заметить, что такая кровать, которую вы видите на рендерах, обошлась заказчикам в $ 1000.

Рендеры: авторская работа дизайнера студии ADIN Алены Лихторович

Читать:
Поделиться: