Секреты дизайнеров. Натуральный, экологичный интерьер с нотками Скандинавии и лофта

22.09.2016 32 7278

Карина Комиссарчик, Карина Комиссарчик

Что для вас экологичный дизайн? Только ли дело в натуральных материалах и древесных оттенках? Дизайнер Елена Кожеурова на примере одного из своих проектов рассказала, что для «натуральной» обстановки недостаточно лишь паркета, важно правильно зонировать пространство, организовать его. Подробнее об этом читайте в нашем материале.

Мода на эко-стиль в интерьере пришла к нам относительно недавно и вмиг стала очень популярной. Последние годы дизайн-студия Елены Кожеуровой много работает именно с этим направлением, так как люди его очень полюбили и приняли. Елена объяснила, что из-за активной жизни в большом городе, мобильности, вечной спешки минчане буквально бегут за город ближе к природе. Также многие хотят создать такой «природный» уголок у себя дома. Именно поэтому экологичный интерьер приобрел такую популярность.

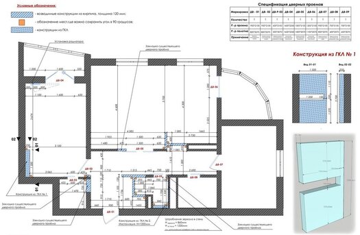
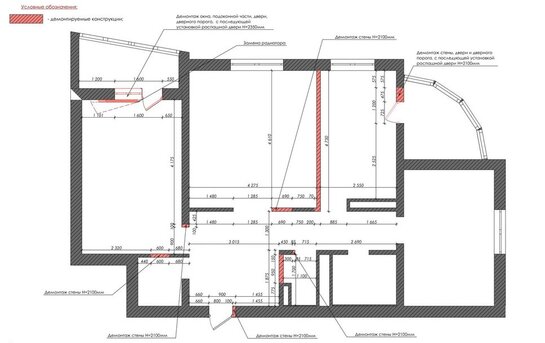
Итак, перейдем к конкретике. Елена предложила рассмотреть проект трехкомнатной квартиры площадью почти 95 кв.м. Работа началась с небольшой перепланировки. Было сразу решено объединить гостиную и кухню, спальню для родителей и детскую — оставить изолированными. Также в квартире есть лоджия, санузлы и гардеробная. Глобальной перепланировки дизайнеры не делали, но постарались все пространство сделать максимально функциональным, не оставлять «мертвых зон» и избавиться от лишних нагромождений.

— Получив большое пространство из кухни и гостиной, нам необходимо было максимально наполнить его естественным солнечным светом. Для этого мы расширили дверной проем на лоджию и установили большие распашные двери из стекла и дерева в пол. Так помещение получилось более воздушным.

Кстати, у нас был выбор — установить распашные или раздвижные двери. Распашные стоят около $ 700, раздвижные — $ 1400. Места у нас достаточно, поэтому заказчики выбрали разумный вариант, — рассказала Елена Кожеурова.

Дизайнер отметила, что в квартире изначально была неоправданно большая прихожая. Это пространство можно использовать гораздо полезнее, чем место для снятия верхней одежды и обуви. В связи с этим было решено отдать часть прихожей санузлу, чтобы появилось место для душевой кабины и постирочной. По нормам можно 25% коридора отвести ванной — такие перепланировки согласовываются быстро.

Теперь в одном из санузлов размещена душевая кабина, унитаз и рукомойник, во втором — ванная и умывальник. Однако, чтобы не перегружать ванную комнату, стиральную и сушильную машины было решено перенести. Место для постирочной было выделено рядом со шкафом, расположенном в прихожей. То есть фасады створок у них общие, а внутри они разделены между собой. Так дизайнеры получили удобные, просторные санузлы и отдельное пространство для стирки.

— Изначально заказчики нас попросили создать интерьер в эко-стиле с использованием солнечных цветов. Такой стиль предполагает использование текстурного дерева, спокойной цветовой гаммы. Сегодня люди хотят не просто красивый новомодный интерьер с дизайнерской мебелью и яркими цветами, они хотят комфортное и удобное пространство, где можно отдохнуть от суеты и быстрого темпа жизни, — объяснила Елена Кожеурова.

Из отделочных материалов для прихожей была использована паркетная доска на полу, потолок — гипсокартонный, стены окрашены, а наверх прикреплен брус с подсветкой, дабы поддержать общую концепцию.

Идем в кухню-гостиную. Несмотря на объединение пространства для простора, зонирование все равно присутствует. П-образная кухня с одной из сторон не имеет верхней части и выглядит как «остров». Над кухней на потолке можно заметить деревянный короб, который не только прячет в себе коммуникации от вытяжной системы, но и продолжает общую стилевую концепцию. Рядом с зоной приготовления пищи расположена обеденная группа.

— Обращаю ваше внимание на деревянную столешницу, которую мы использовали. У нас было два варианта: использовать для ее создания постформинг с текстурой дерева или деревянную из склеенного бруса. Второй вариант менее долговечный и не такой устойчивый к внешним воздействиям. Мы предупреждаем об этом заказчиков, но выглядит натуральное дерево гораздо лучше, дороже. Постформинг более прочный и долговечный, он также достойно выглядит, но натуральное дерево ничто не заменит. Кстати, по цене эти материалы отличаются буквально на $ 30, — поделилась Елена Кожеурова.

Вторая часть помещения — зона для отдыха и принятия гостей. Стена за зоной TV задекорирована таким же деревом, которое было использовано для создания короба на кухне. В кухне-гостиной были использованы такие же отделочные материалы, как и в прихожей. Лишь в зоне готовки на полу положена плитка. Потолок в кухонной зоне чуть ниже, чем в гостиной из-за установки коммуникаций и светильников.

Переходим в спальню родителей. Первое, что сделали дизайнеры по желанию заказчиков — это перенесли вход в гардеробную из прихожей в спальню. Плюс они попросили выделить место для небольшой рабочей зоны, что дизайнерами было выполнено.

— Мы долго думали о том, как интересно оформить изголовье кровати. Во-первых, нам нужно было создать здесь места для хранения, при этом поддержать общую концепцию интерьера. Мы использовали деревянные брус, а также полки, из которых сделали «арку». Образовавшееся углубление также задекорировали деревом и картиной. В итоге такое объемное изголовье сливается с кроватью — все это выглядит цельно и гармонично. Здесь мы дизайнерское решение сделали еще и практичным, — рассказала Елена Кожеурова.

Детская комната также выполнена в эко-стиле, но с использованием более ярких вкраплений. Здесь одна из стен была полностью отдана для шкафа для хранения одежды и игрушек. Также в детской есть зона для выполнения домашнего задания, сна.

— Изначально в зоне хранения мы выдели место для небольшого детского домика, о котором мечтают все малыши. Вспомните, как мы любили строить замки из стульев и одеял. Однако это решение заказчики, к сожалению, не одобрили — решили оставить только шкаф.

Очень часто бывает, что заказчики отказываются от идей дизайнера. То есть интерьер может показаться без «изюминки» или особенного подхода не потому, что дизайнер не смог что-то придумать, а потому, что заказчики видят свой интерьер по-другому.

Санузлы оформлены в плитку светлых тонов, выбранных в одном из столичных салонов. Для первого санузла была выбрана коллекция более бежевого оттенка, для второго — в светло-серой цветовой гамме. В обоих помещениях использовались деревянные акценты в поддержку общего стиля.

Для такого ремонта на черновые материалы было потрачено $ 7 тыс., на чистовые и черновые материалы — $ 18,9 тыс.

Фото: Феликс Сиваков, рендеры: авторская работа дизайн студии Елены Кожеуровой

Читать:
Поделиться: