Секреты дизайнеров. Шест в спальне, встроенный в зеркало телевизор для ванной и белорусская плитка — интересный ремонт в двухуровневой квартире

21.07.2016 9 6388

Карина Комиссарчик, Карина Комиссарчик

Каждый проект для дизайнера — отдельная история со своими «изюминками» и необычностями. Дизайнер студии DKing Дарья Лапицкая рассказала об интерьере двухуровневой квартиры, где есть не только хорошие отделочные материалы, но и интересные детали: например, встроенный в зеркало телевизор в ванной комнате или шест в спальне. Возможно, какие-то из деталей вы захотите использовать в своем жилом пространстве.

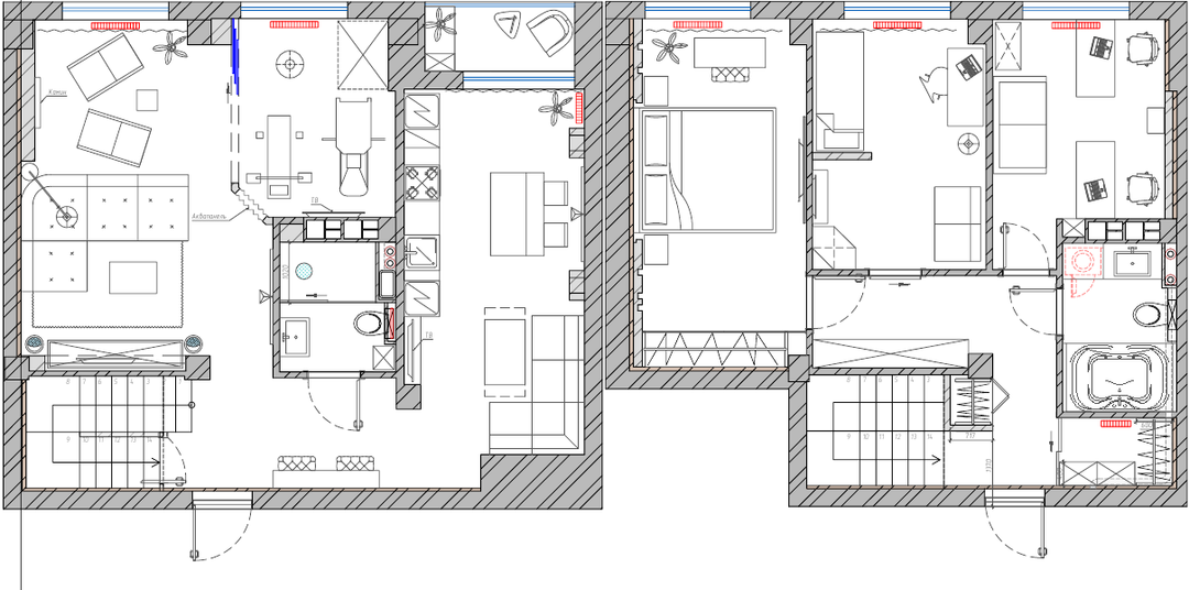
Студия DKing создавала пространство в двухуровневой квартире площадью 120 кв.м. Квартира просторная с удобной планировкой, однако дизайнеры все же прибегли к небольшой перепланировке. Коммуникации не переносились, только были расширены кое-где дверные проемы, а также была расширена ванная комната на втором этаже и установлены французские окна на внутренней части балкона, то есть фасад остался неизмененным. Разумеется, все изменения нужно было согласовывать.

На первом уровне квартиры находятся прихожая, гостиная, зона отдыха и спорта, а также кухня и гостевой санузел с большой душевой кабиной. На втором этаже находится приватная зона: хозяйская спальня, комната для будущего ребенка, кабинет, гардеробная, кладовая и большая ванная комната.

— Заказчики не просили какой-то определенный стиль в будущем интерьере. Они просто хотели современно оформить квартиру, используя натуральные материалы и контрастные цвета. Здесь прослеживается намек на экологичность благодаря плитке «под дерево», натуральному дереву, природным цветам.

Просторная прихожая оформлена в цвета от бежевого до темно-коричневого. Одна из стен облицована деревянными панелями с алюминиевыми вставками. Это позволит сделать стену и место входной двери более долговечными. Если выбирать вариант бюджетнее, то дизайнер советует остановить свой выбор на декоративной штукатурке, также можно использовать шпон. Также для стен использовалась покраска. Пол прихожей оформлен в плитку «под дерево», потолок — из гипсокартона. Дарья объясняет, что неплохую плитку «под дерево» сегодня выпускают разные производители и по разным ценам, поэтому выбрать доступный по цене вариант сегодня не проблема. В прихожей мало мебели, она не нагромождена. Дополнительно пространство расширяет большое зеркало в зоне подвесной консоли.

— Условно вся гостиная разделена на три зоны: пространство для просмотра телевизора, место для отдыха и пространство для спорта. Заходя в гостиную, мы видим большую зону отдыха с угловым диваном и зоной TV, где использовались такие же деревянные панели, как и в прихожей, чтобы визуально объединить весь интерьер. Обратите внимание на потолок в зоне гостиной: на нем использовались деревянный короб с самосветящейся панелью, который имитирует большую люстру. Кроме этого на потолке есть точечные светильники, а также торшеры. На полу в гостиной — паркет, стены окрашены, потолок сделан из гипсокартона.

Далее следует небольшая зона релакса с двумя креслами, где установлен биокамин, который вокруг также облицован деревом, чтобы подчеркнуть всю стилистику. Также на первом этаже есть зона спорта, где стоят тренажеры. Она отделена от всего остального пространства стеклянными дверями и аквапанелями, которые хорошо увлажняют воздух. Они стоят недешево, поэтому при желании сэкомить их просто можно не использовать.

Одна из стен в спортивной зоне, как это делается традиционно в тренажерных залах, полностью облицована стеклом. Также для оформления стен здесь использовался декоративный кирпич и покраска.

Достаточно места в квартире отведено для кухни с «островом», который также включает в себя барную стойку. Вся кухня оформлена так же, как и сама квартира. Белые оттенки здесь сочетаются с деревом. Условно кухня разделена на две зоны: для готовки и релакса. Визуально это сделано с помощью разных напольных покрытий. В зоне готовки использована светлая плитка «под дерево», а в зоне отдыха — паркет. Во второй зоне стоит угловой диван и небольшой столик — это и есть обеденная зона. От традиционного большого стола заказчики отказались. Для кухонной мебели использовался крашенный МДФ для верхних шкафчиков, а нижние сделаны из cleaf. Такая кухня стоит около $ 5,5 тыс. Дизайнер говорит, что можно найти более бюджетные аналоги.

— Так как наша кухня длинная и узкая, то просто линейный кухонный гарнитур был бы не удобен. Решение с «островом» — хорошо подходит именно для узких помещений. К кухне примыкает балкон, дверной проход в который расширен. Также здесь были установлены французские окна, чтобы впустить в кухню больше естественного освещения.

Гостевой санузел совмещен. Интересно, что по просьбе заказчиков душевая кабина занимает половину отведенного пространства. Для гостевого санузла использовалась бюджетная плитка белорусского производства из модной коллекции «под бетон». В зоне душа потолок сделан из гипсокартона, а после облицован плиткой, из-за чего он немного опустился.

Лестница, ведущая на второй этаж, сделана из дерева и стекла, ступеньки подсвечены. Стены на лестничной зоне покрашены, только одна из них облицована деревом. Второй уровень квартиры начинается с небольшой гардеробной комнаты, после идет кабинет на два рабочих места. Рабочая зона сделана больше в лофтовом стиле с использованием декоративного английского оранжевого кирпича, который традиционен для этого стиля, декоративной штукатурки «под бетон», кожаных диванов и брутальных деревянных столов. Чтобы разбавить обстановку, дизайнеры использовали ниши, в которых разместили комнатные растения.

— В квартире отведена комната для будущего ребенка. Так как пол малыша еще не известен, то стены, пол и потолок мы делали в нейтральных тонах, лишь мебель говорит о девчачьей обстановке, которую легко можно поменять. В этом помещении мы использовали паркет на полу, гипсокартонный потолок, немного белого декоративного кирпича. Комната была немного размонтирована с помощью перегородки, чтобы выделить зону для сна.

Самая интересная комната в квартире — хозяйская спальня. Здесь продолжается общий дизайн квартиры с использованием дерева и контрастных цветов. За счет облицовки стены по бокам деревом в центре образовалась небольшая ниша, которая стала прикроватной зоной. Между деревянными панелями вставлены светодиодные профили. В гипсокартонный разноуровневый потолок вставлены широкие световые панели.

— В спальне по просьбе заказчиков был установлен шест. Мы разместили его слева от кровати, учитывая рост хозяйки, чтобы ей было удобно. Чтобы установить шест, не нужно много денег, это достаточно просто. Над ним мы установили подсветку. Несмотря на наличие гардеробной, в спальне есть шкаф-купе. Много мест для хранения не бывает.

— Хозяйскую ванну мы расширяли за счет коридора, чтобы вместить туда большую ванную-джакузи на двоих. В ванной комнате мы использовали испанскую плитку «под дерево» и светлые оттенки. Интересной деталью здесь является телевизор, встроенный в зеркало. Удовольствие не из дешевых, но заказчики очень хотели такую опцию. Зеркало расположено напротив ванной.

Дарья рассказала, что на черновые материалы для такого ремонта нужно потратить $ 8 тыс., чистовые материалы обойдутся примерно в $ 25 тыс., работы — около $ 17 тыс.

Рендеры: авторская работа дизайн-студии DKing

Читать:
Поделиться: