Помещение (салон красоты) ул Карповича, 5

286 440 р.

100 000 $

3 300 р. 1 152 $ за м²

Продажа
Следить за ценой
Торговое помещение

Тип

86.80 м²

Площадь

1 из 4

Этаж

30.01.2026ID 3627347
pdf
Обзор по коммерческой недвижимости
Сделки, цены и ставки аренды за 2025 год

Описание

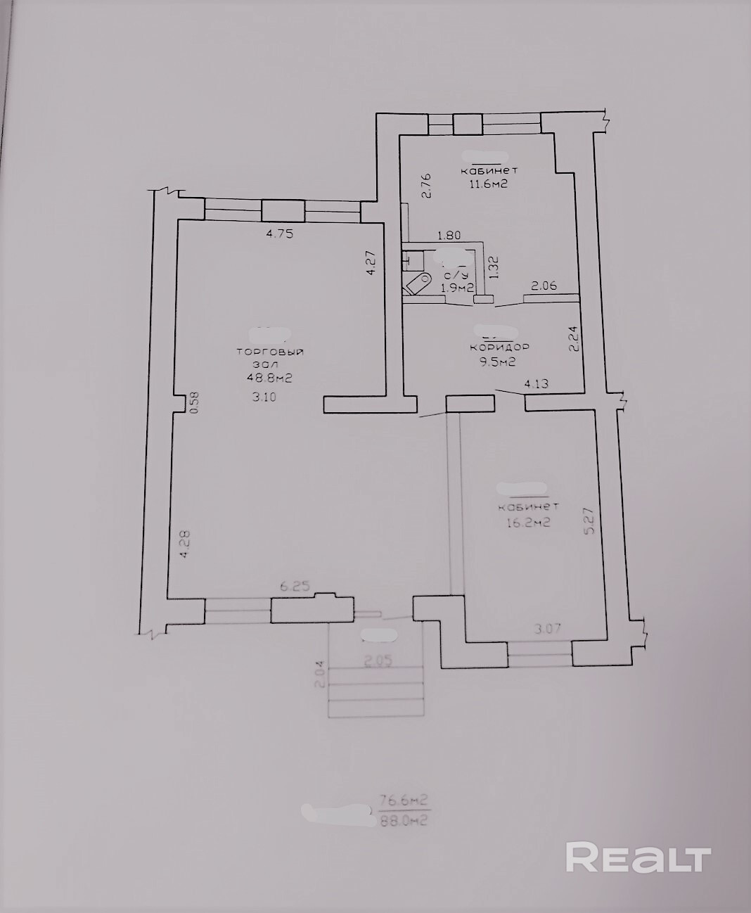
Продается коммерческое помещение по ул Карповича 5. Общей площадью 86,9м.кв. Объект находится недалеко от вокзала и центрального рынка, рядом в шаговой доступности транспортная остановка.
Стоимость указана без НДС.
приглашаем на просмотр!

Параметры объекта

  • Тип объекта

    Торговое помещение

  • Площадь общая

    86.80 м²

  • Этаж / этажность

    1 / 4

  • Год постройки

    1946

  • Раздельных помещений

    3

  • Материал стен

    Кирпичный

  • Высота потолков

    2.7 м

  • Ремонт

    Хороший

  • Отопление

    Есть

  • Электроснабжение

    Есть

  • Естественное освещение

    Есть

  • Вода

    Горячая

  • Санузел

    Есть

  • Принадлежность объекта

    Государственная

  • Расположение

    В жилом доме

  • Номер договора

    21/7 от 21.01.2025

Примечание

Продается коммерческое помещение по ул Карповича 5. Общей площадью 86,9м.кв. Объект находится недалеко от вокзала и центрального рынка, рядом в шаговой доступности транспортная остановка. Стоимость указана без НДС. приглашаем на просмотр!

Местоположение